Официальное опубликование правовых актов
ОФИЦИАЛЬНОЕ ОПУБЛИКОВАНИЕ
Приказ Министерства культуры Российской Федерации от 16.01.2018 № 19
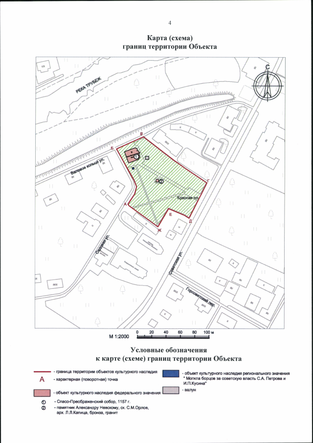
"Об утверждении границ и режима использования территории объекта культурного наследия федерального значения "Спасо-Преображенский собор", 1157 г.‚ расположенного по адресу: Ярославская область, г. Переславль-Залесский, Красная площадь, д. 1а"
(Зарегистрирован 01.02.2018 № 49863)
Номер опубликования: 0001201802020016
Дата опубликования: 02.02.2018
Страница №4 из 7:
Увеличить