Официальное опубликование правовых актов
ОФИЦИАЛЬНОЕ ОПУБЛИКОВАНИЕ
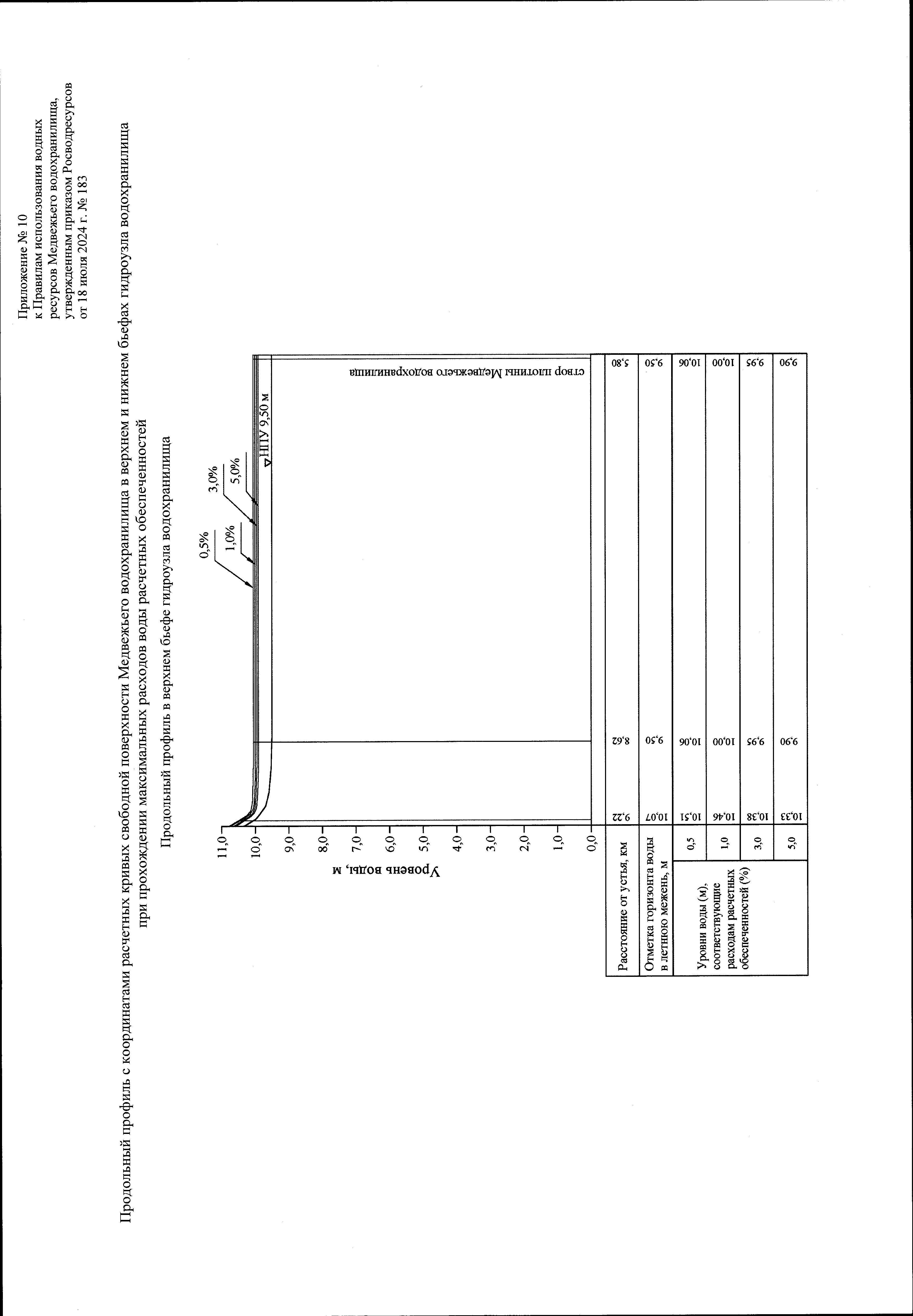
Приказ Федерального агентства водных ресурсов от 18.07.2024 № 183
"Об утверждении Правил использования водных ресурсов Медвежьего водохранилища"
(Зарегистрирован 20.08.2024 № 79213)
Номер опубликования: 0001202408210008
Дата опубликования: 21.08.2024
Страница №59 из 61: