Официальное опубликование правовых актов
ОФИЦИАЛЬНОЕ ОПУБЛИКОВАНИЕ
Приказ Министерства культуры Российской Федерации от 13.10.2025 № 1808
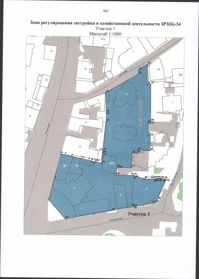
"Об утверждении границ зон охраны объекта культурного наследия федерального значения "Ансамбль Казанского кремля", ХV — первая четверть ХХ вв. (Республика Татарстан (Татарстан), включенного в Список всемирного наследия, особых режимов использования земель и требований к градостроительным регламентам в границах территорий данных зон"
(Зарегистрирован 29.01.2026 № 85129)
Номер опубликования: 0001202601300032
Дата опубликования: 30.01.2026
Страница №565 из 839:
Увеличить