Приказ Управления по государственной охране объектов культурного наследия Республики Башкортостан от 28.01.2026 № 24
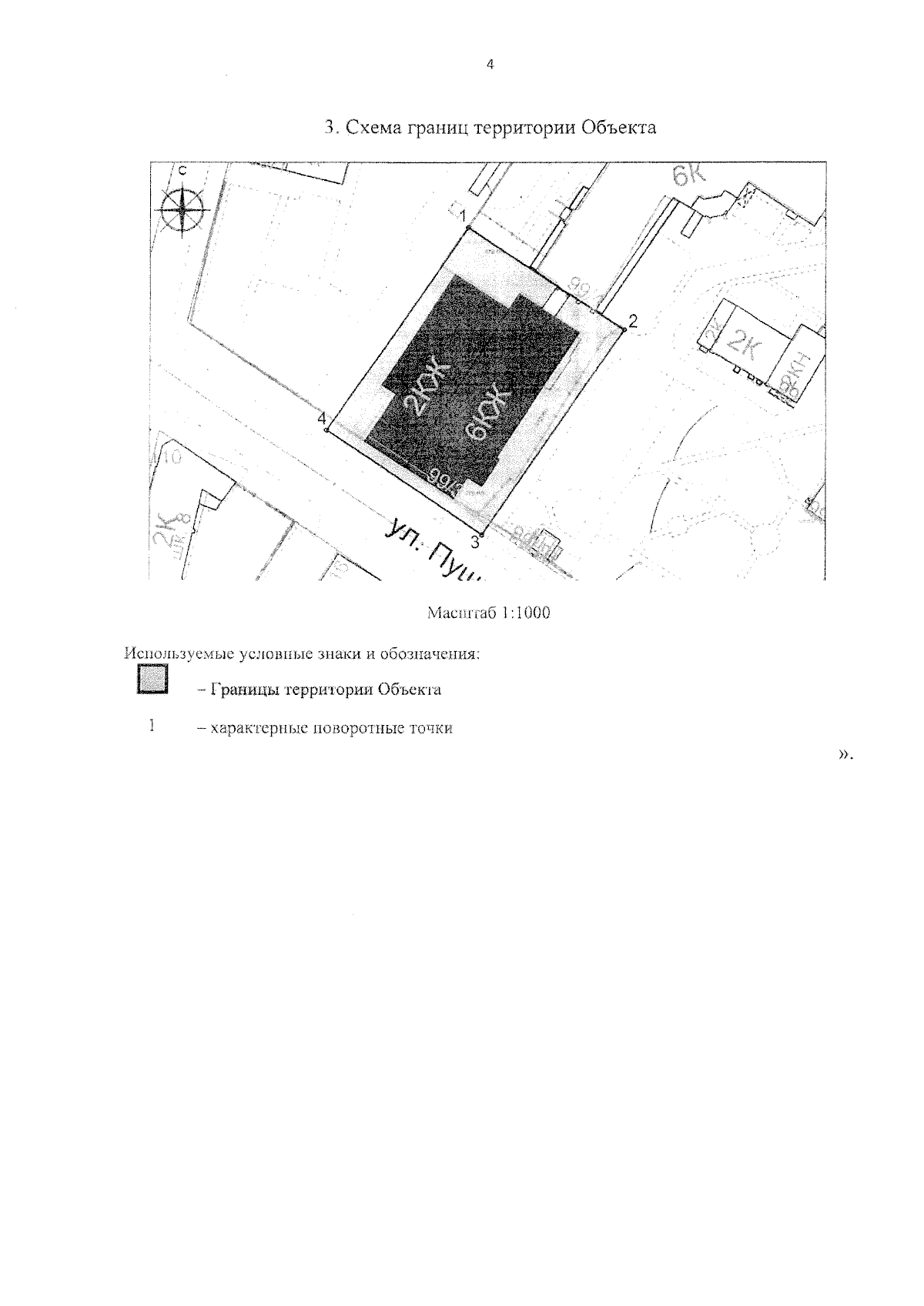
"О внесении изменений в приказ Управления по государственной охране объектов культурного наследия Республики Башкортостан от 28 июня 2019 года № 186 "Об утверждении границ территории объекта культурного наследия регионального значения "Дом жилой Ляховых", расположенного по адресу: Республика Башкортостан, г. Уфа, ул. Пушкина, 99"
(Зарегистрирован 18.02.2026 № 25896)
"О внесении изменений в приказ Управления по государственной охране объектов культурного наследия Республики Башкортостан от 28 июня 2019 года № 186 "Об утверждении границ территории объекта культурного наследия регионального значения "Дом жилой Ляховых", расположенного по адресу: Республика Башкортостан, г. Уфа, ул. Пушкина, 99"
(Зарегистрирован 18.02.2026 № 25896)
Номер опубликования: 0201202602250003
Дата опубликования:
25.02.2026
