Официальное опубликование правовых актов
ОФИЦИАЛЬНОЕ ОПУБЛИКОВАНИЕ
Приказ Управления по государственной охране объектов культурного наследия Республики Башкортостан от 04.02.2026 № 59
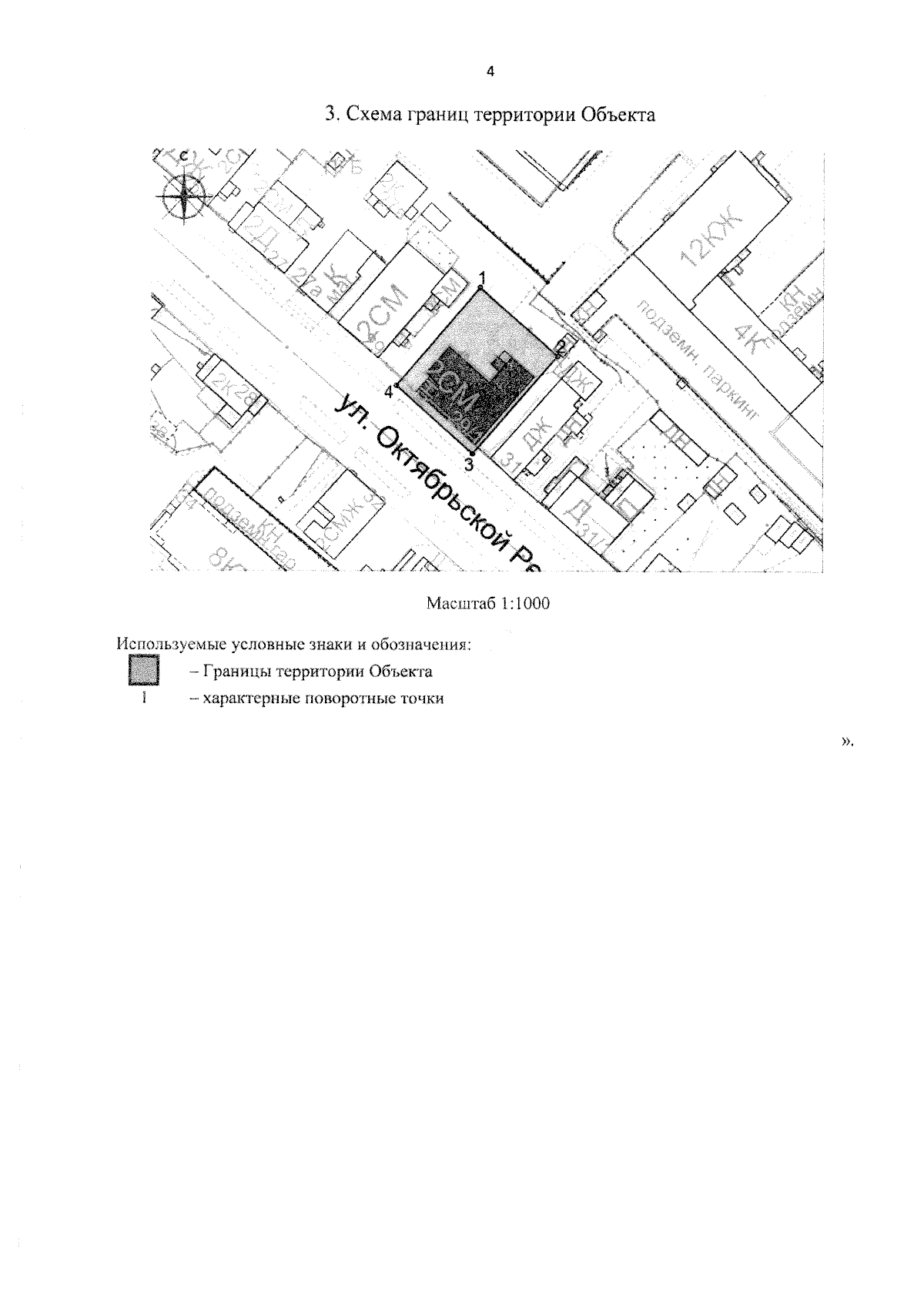
"О внесении изменений в приказ Управления по государственной охране объектов культурного наследия Республики Башкортостан от 24 мая 2019 года № 136 "О включении выявленного объекта культурного наследия "Комитет попечительства о бедных (IV-е здание усадебном комплексе)", расположенного по адресу: Республика Башкортостан, г. Уфа, ул. Октябрьской Революции, д. 29/1, в Единый государственный реестр объектов культурного наследия (памятников истории и культуры) народов Российской Федерации в качестве объекта культурного наследия регионального значения, утверждении его предмета охраны, границ и режима использования территории"
(Зарегистрирован 03.03.2026 № 25937)
Номер опубликования: 0201202603110005
Дата опубликования: 11.03.2026
Страница №6 из 7:
Увеличить