Официальное опубликование правовых актов
ОФИЦИАЛЬНОЕ ОПУБЛИКОВАНИЕ
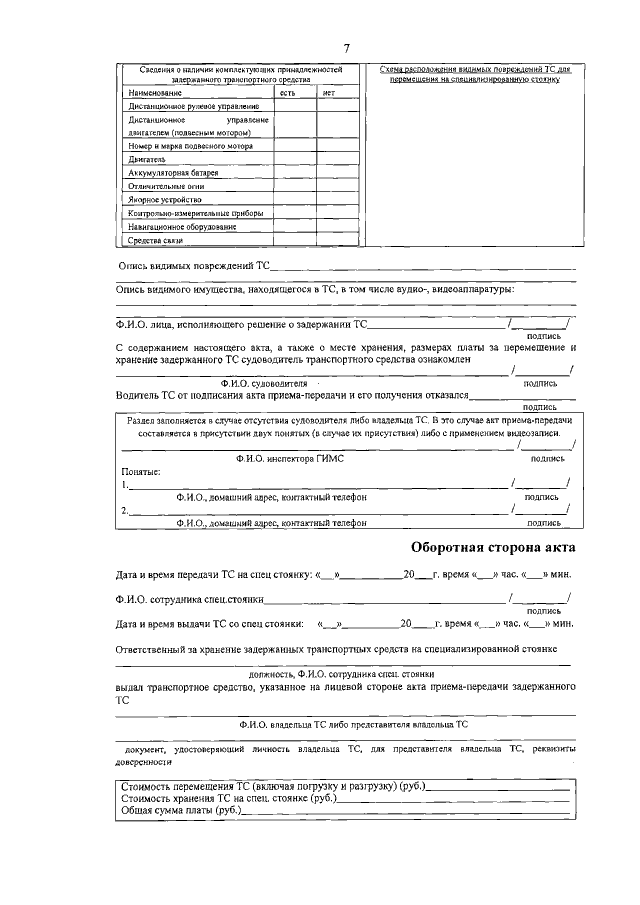
Приказ Министерства регионального развития Республики Алтай от 02.06.2020 № 221-Д
"Об утверждении форм актов приема-передачи задержанного транспортного средства на перемещение и хранение"
Номер опубликования: 0401202006040003
Дата опубликования: 04.06.2020
Страница №7 из 8:
Увеличить