Официальное опубликование правовых актов
ОФИЦИАЛЬНОЕ ОПУБЛИКОВАНИЕ
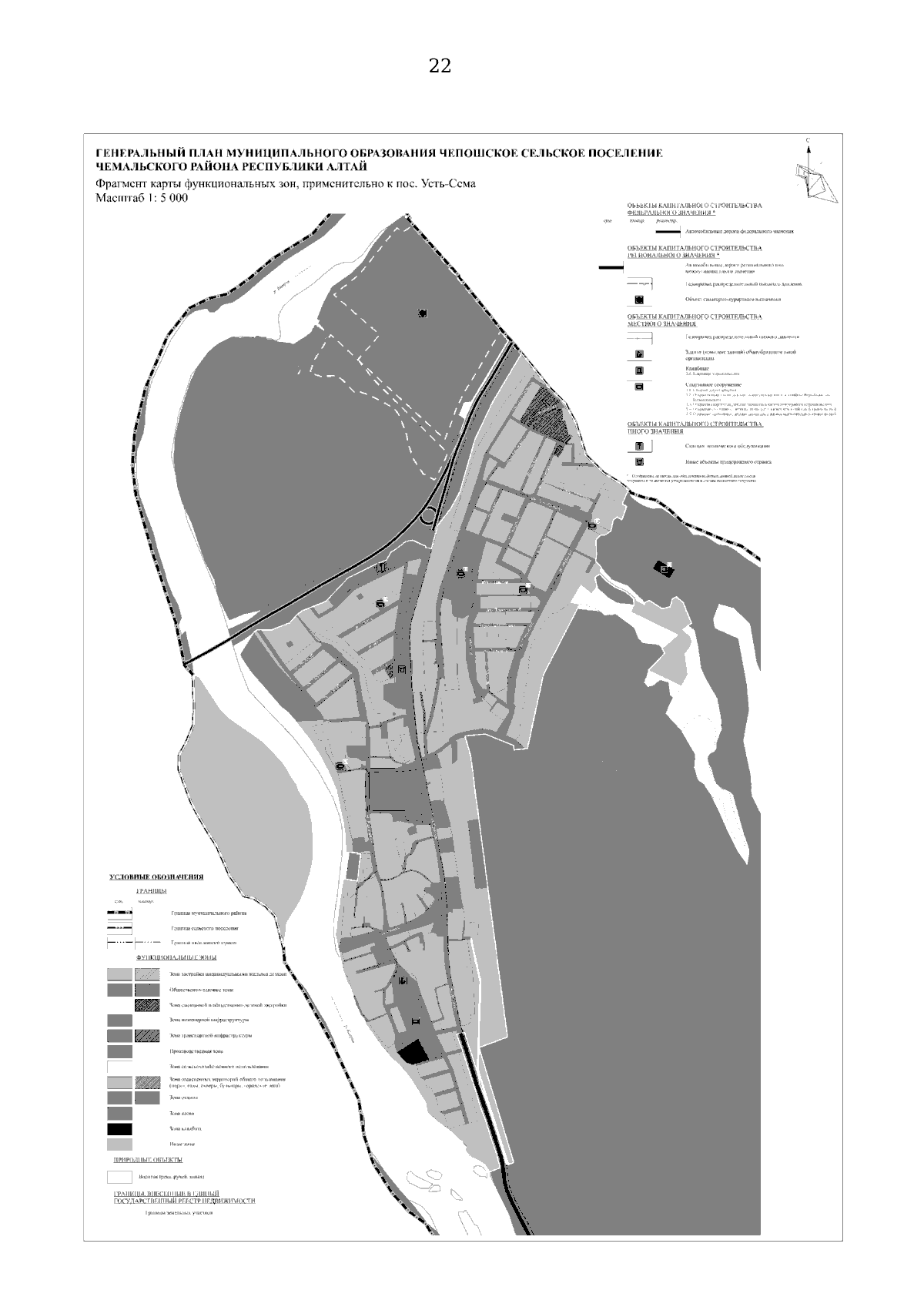
Приказ Министерства экономического развития Республики Алтай от 20.02.2026 № П-05-01/67
"О внесении изменений в Генеральный план Чепошского сельского поселения Чемальского района Республики Алтай"
(Зарегистрирован 25.02.2026 № 86)
Номер опубликования: 0401202602260001
Дата опубликования: 26.02.2026
Страница №22 из 23:
Увеличить