Официальное опубликование правовых актов
ОФИЦИАЛЬНОЕ ОПУБЛИКОВАНИЕ
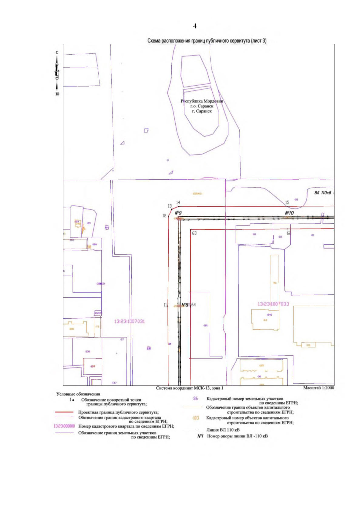
Постановление Правительства Республики Мордовия от 23.03.2026 № 284
"Об установлении публичного сервитута в целях эксплуатации объекта электросетевого хозяйства "Линейный объект ВЛ 110 кВ "Саранская 220 – Центролит I,II"
Номер опубликования: 1300202603240007
Дата опубликования: 24.03.2026
Страница №6 из 18:
Увеличить