Официальное опубликование правовых актов
ОФИЦИАЛЬНОЕ ОПУБЛИКОВАНИЕ
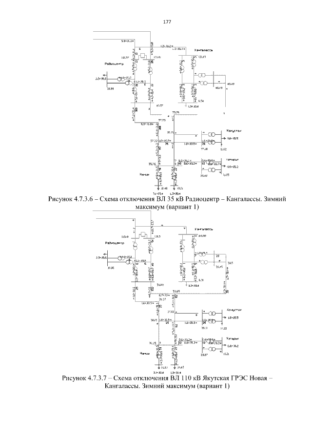
Указ Главы Республики Саха (Якутия) от 23.04.2018 № 2515
"О схеме и программе развития электроэнергетики Республики Саха (Якутия) на 2018-2022 годы"
Номер опубликования: 1400201804250005
Дата опубликования: 25.04.2018
Страница №178 из 216:
Увеличить