Официальное опубликование правовых актов
ОФИЦИАЛЬНОЕ ОПУБЛИКОВАНИЕ
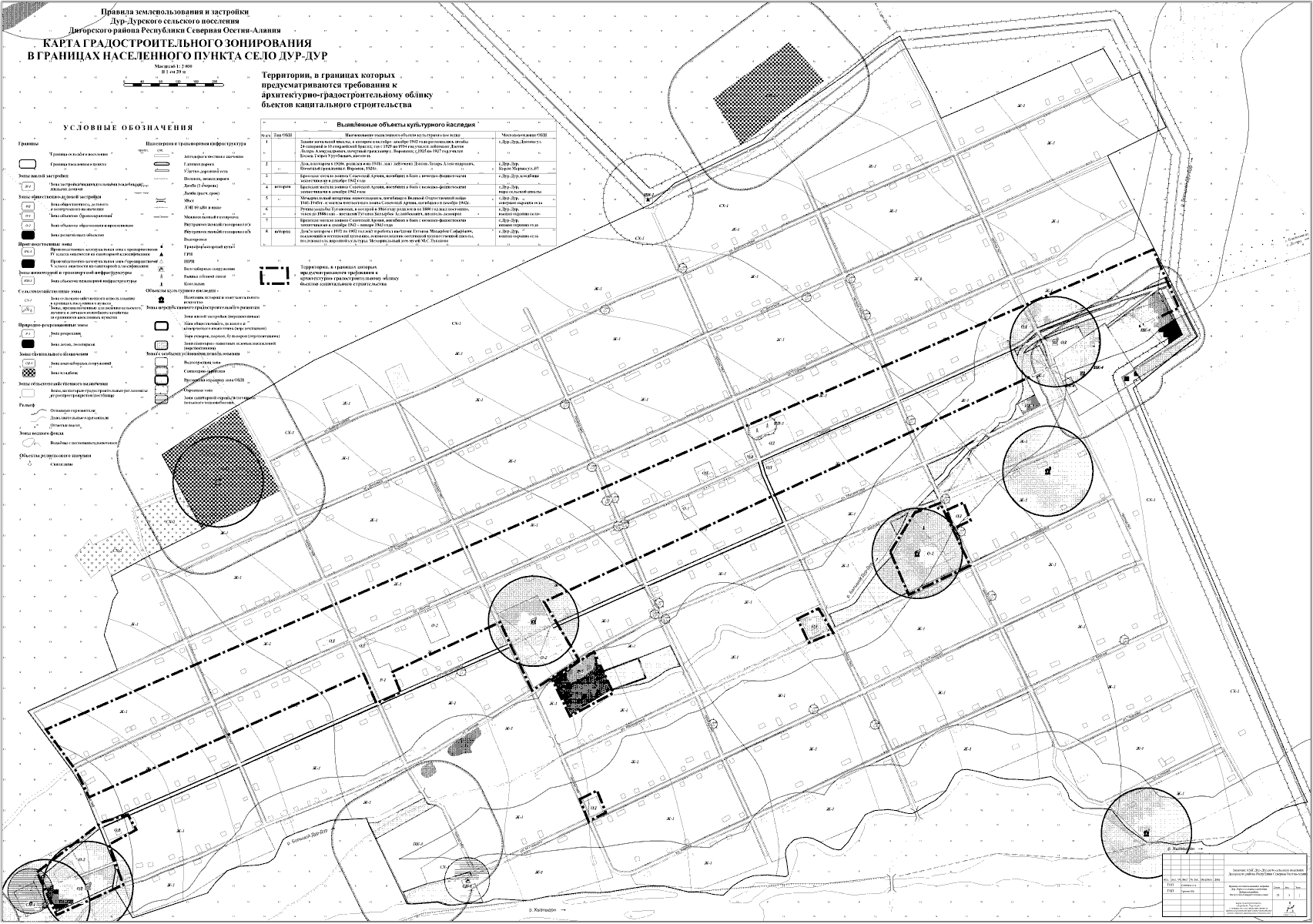
Приказ Министерства строительства и архитектуры Республики Северная Осетия-Алания от 18.12.2025 № 101
"Об утверждении правил землепользования и застройки Дур-Дурского сельского поселения Дигорского муниципального района Республики Северная Осетия-Алания"
(Зарегистрирован 18.12.2025 № 0270-25-1)
Номер опубликования: 1501202512220005
Дата опубликования: 22.12.2025
Страница №106 из 106: