Официальное опубликование правовых актов
ОФИЦИАЛЬНОЕ ОПУБЛИКОВАНИЕ
Постановление Правительства Амурской области от 06.02.2026 № 64
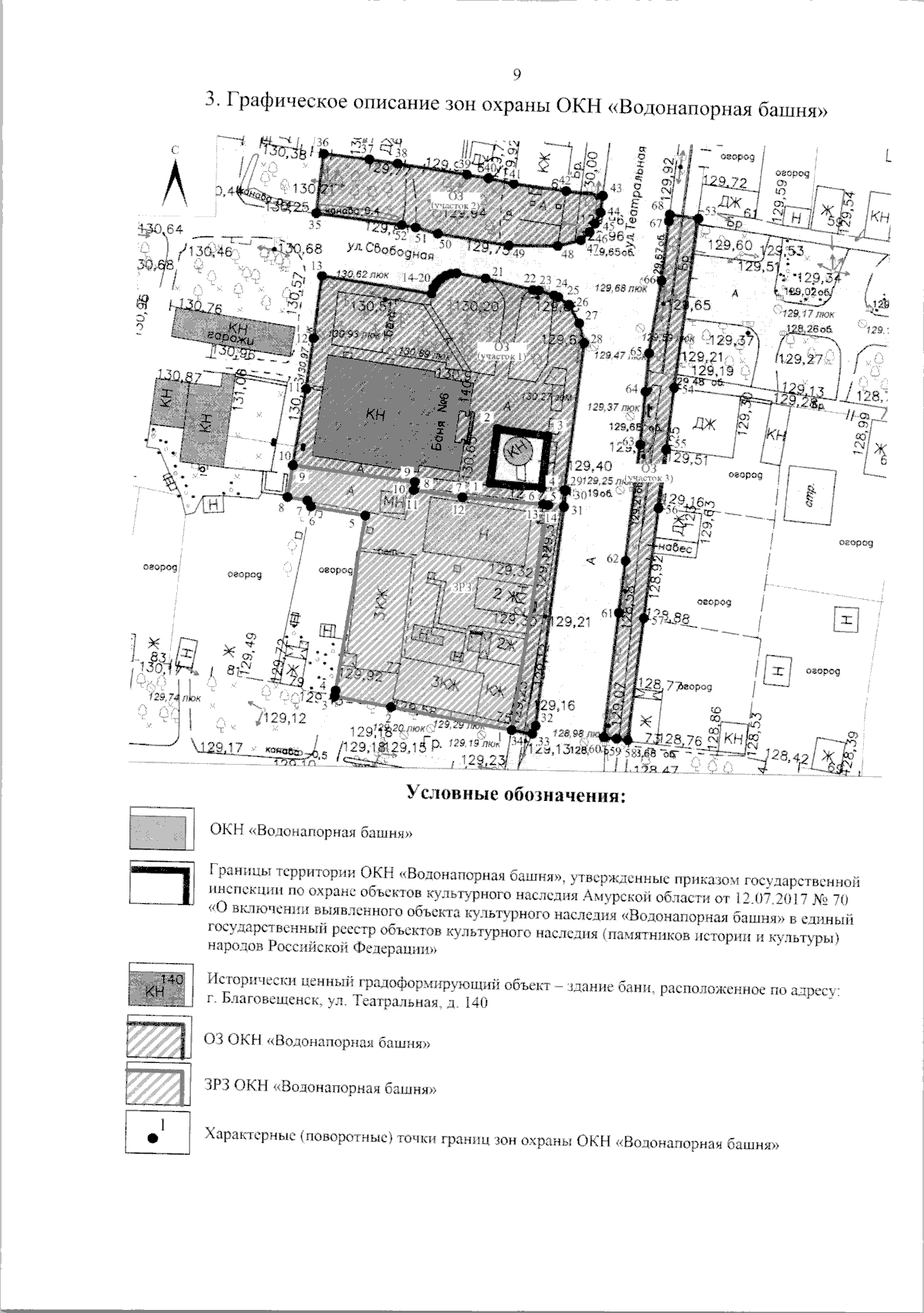
"Об установлении зон охраны объекта культурного наследия регионального значения "Водонапорная башня", 1917 г. (Амурская область, г. Благовещенск, ул. Театральная, 140) и утверждении требований к градостроительным регламентам в границах территорий данных зон"
Номер опубликования: 2800202602120010
Дата опубликования: 12.02.2026
Страница №10 из 10:
Увеличить