Официальное опубликование правовых актов
ОФИЦИАЛЬНОЕ ОПУБЛИКОВАНИЕ
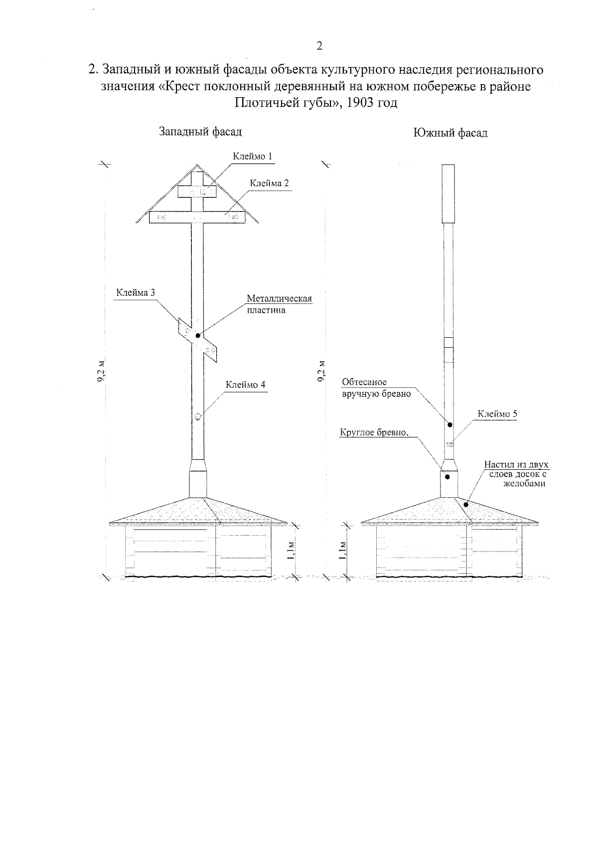
Постановление Инспекции по охране объектов культурного наследия Архангельской области от 24.11.2025 № 107-п
"Об утверждении предмета охраны объекта культурного наследия (памятника истории и культуры) народов Российской Федерации регионального значения "Крест поклонный деревянный на южном побережье в районе Плотичьей губы", 1903 год, расположенного по адресу: Архангельская область, Приморский муниципальный округ, остров Анзерский, Плотичья губа"
(Зарегистрирован 25.11.2025 № 29-2025-409/1085)
Номер опубликования: 2901202511250006
Дата опубликования: 25.11.2025
Страница №6 из 6:
Увеличить