Официальное опубликование правовых актов
ОФИЦИАЛЬНОЕ ОПУБЛИКОВАНИЕ
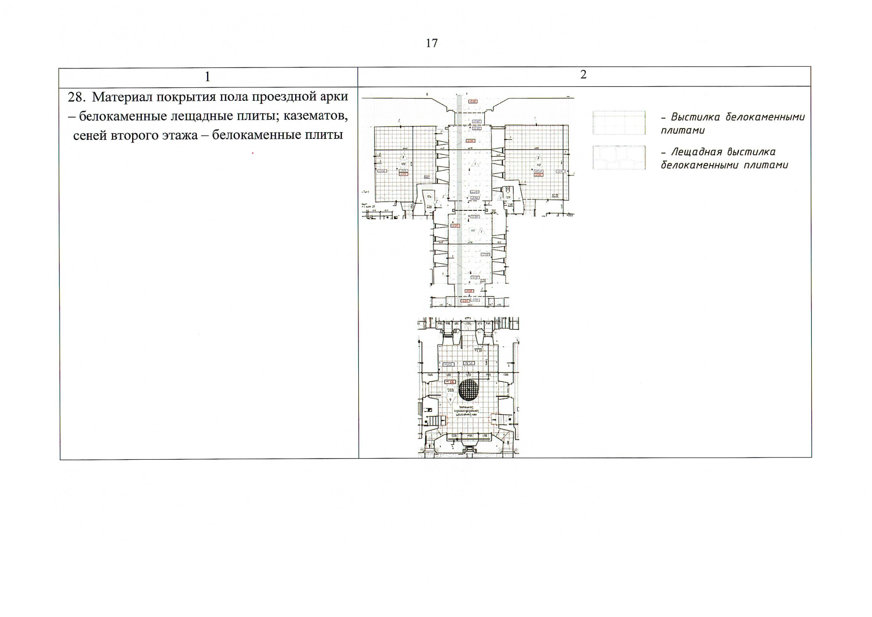
Постановление Инспекции по охране объектов культурного наследия Архангельской области от 23.03.2026 № 8-п
"Об утверждении предмета охраны объекта культурного наследия (памятника истории и культуры) народов Российской Федерации федерального значения "Комендантский дом у Двинских ворот", 1705 год, расположенного по адресу: Архангельская область, городской округ "Город Архангельск", г. Архангельск, ул. Ивана Рябова, д. 17, строение 5"
(Зарегистрирован 24.03.2026 № 29-2026-409/182)
Номер опубликования: 2901202603240001
Дата опубликования: 24.03.2026
Страница №19 из 19:
Увеличить