Официальное опубликование правовых актов
ОФИЦИАЛЬНОЕ ОПУБЛИКОВАНИЕ
Распоряжение Правительства Астраханской области от 13.02.2026 № 46-Пр
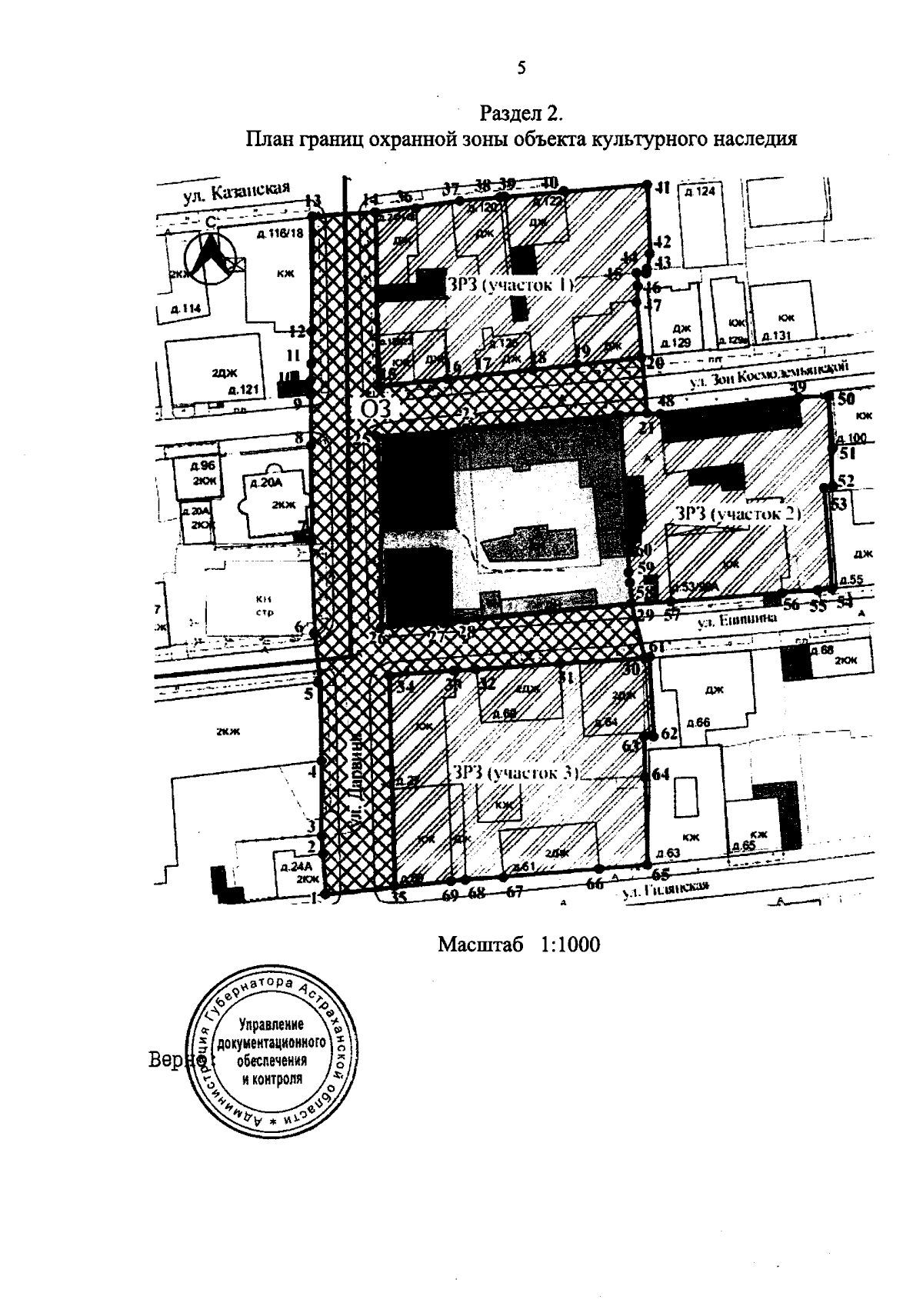
"Об установлении зоны охраны объекта культурного наследия регионального значения "Домовладение 5-й пожарной части городского общества, кон. XIX в.", расположенного по адресу: Астраханская область, г. Астрахань, ул. Дарвина, 25, ул. Епишина, 51, ул. З. Космодемьянской, 98 (Лит. "А", "Б"), и утверждении требований к градостроительным регламентам в границах данной зоны"
Номер опубликования: 3000202602170006
Дата опубликования: 17.02.2026
Страница №7 из 18:
Увеличить