Официальное опубликование правовых актов
ОФИЦИАЛЬНОЕ ОПУБЛИКОВАНИЕ
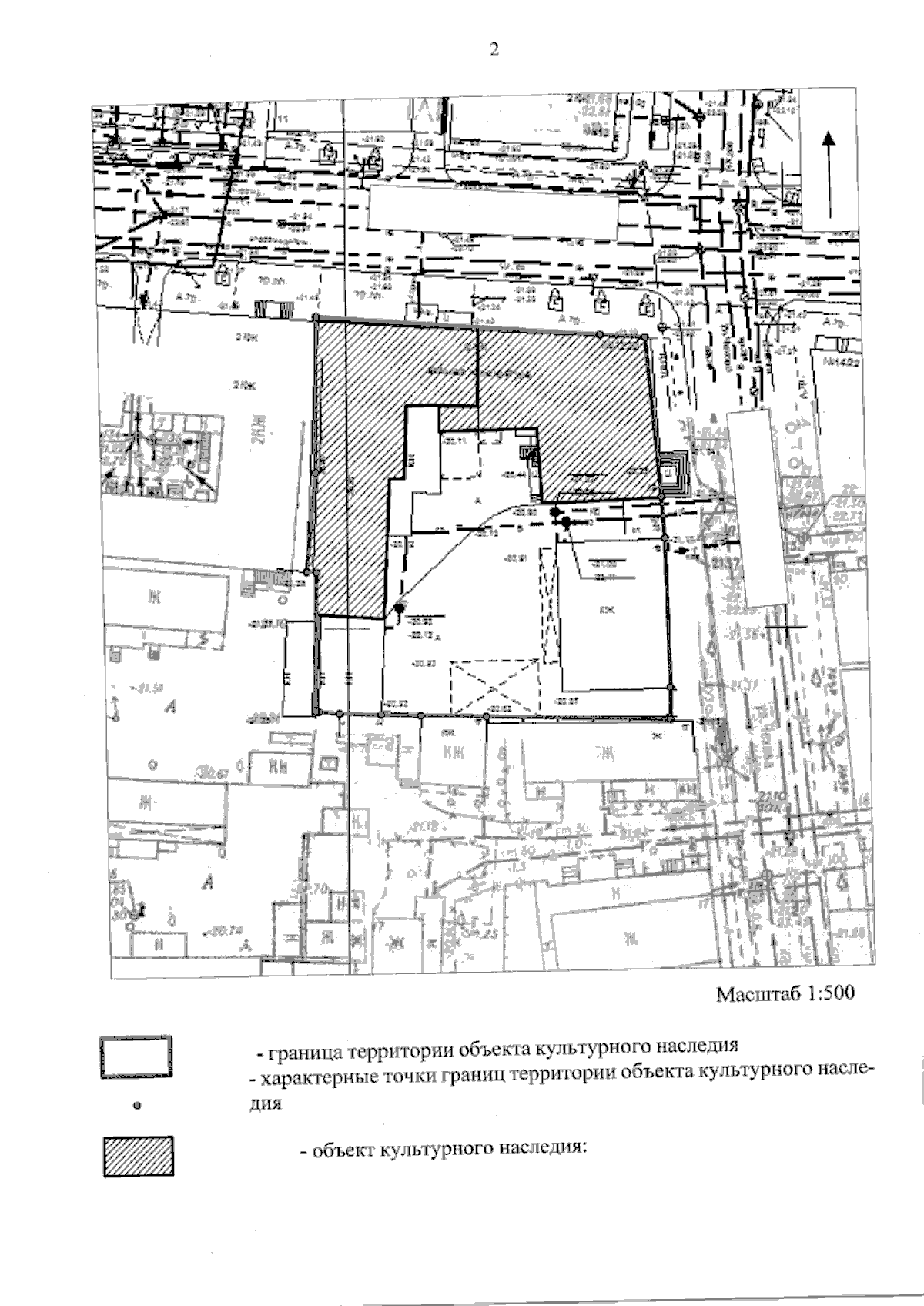
Постановление Службы государственной охраны объектов культурного наследия Астраханской области от 16.12.2025 № 58
"О внесении изменений в постановление службы государственной охраны объектов культурного наследия Астраханской области от 12.11.2025 № 55"
(Зарегистрирован 16.12.2025 № 302/25/58)
Номер опубликования: 3001202512190002
Дата опубликования: 19.12.2025
Страница №2 из 7:
Увеличить