Официальное опубликование правовых актов
ОФИЦИАЛЬНОЕ ОПУБЛИКОВАНИЕ
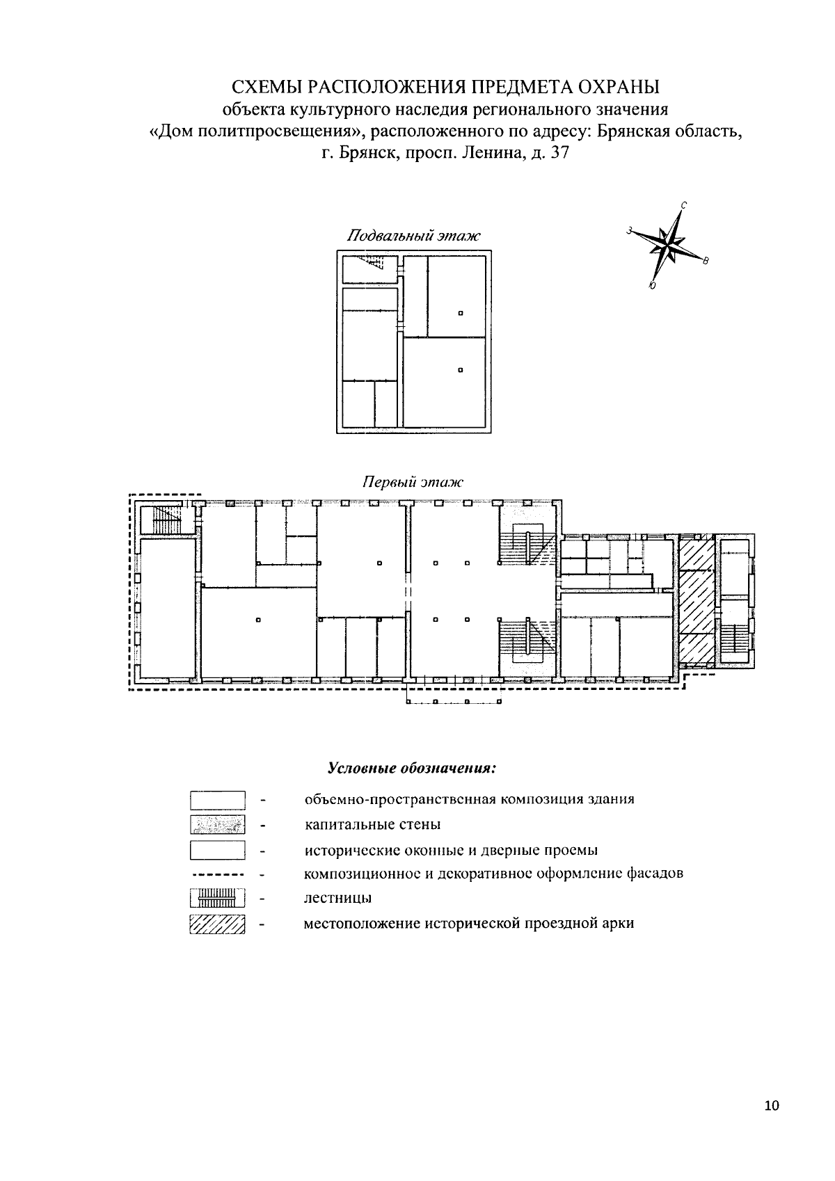
Приказ Управления по охране и сохранению историко-культурного наследия Брянской области от 11.03.2026 № 2-1/33
"Об утверждении предмета охраны объекта культурного наследия регионального значения "Дом политпросвещения", расположенного по адресу: Брянская область, г. Брянск, просп. Ленина, д, 37"
(Зарегистрирован 12.03.2026 № 20260008025)
Номер опубликования: 3201202603200006
Дата опубликования: 20.03.2026
Страница №12 из 13:
Увеличить