Официальное опубликование правовых актов
ОФИЦИАЛЬНОЕ ОПУБЛИКОВАНИЕ
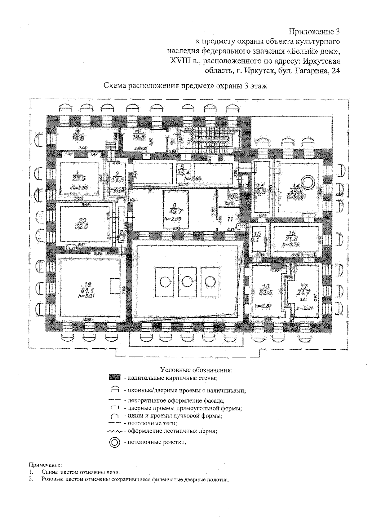
Приказ службы по охране объектов культурного наследия Иркутской области от 04.02.2026 № 76-3-спр
"О внесении изменения в предмет охраны объекта культурного наследия федерального значения "Белый" дом", XVIII в., расположенного по адресу: Иркутская область, г. Иркутск, бул. Гагарина, 24"
(Зарегистрирован 09.02.2026 № 04-0159/26)
Номер опубликования: 3801202602100008
Дата опубликования: 10.02.2026
Страница №9 из 10:
Увеличить