Официальное опубликование правовых актов
ОФИЦИАЛЬНОЕ ОПУБЛИКОВАНИЕ
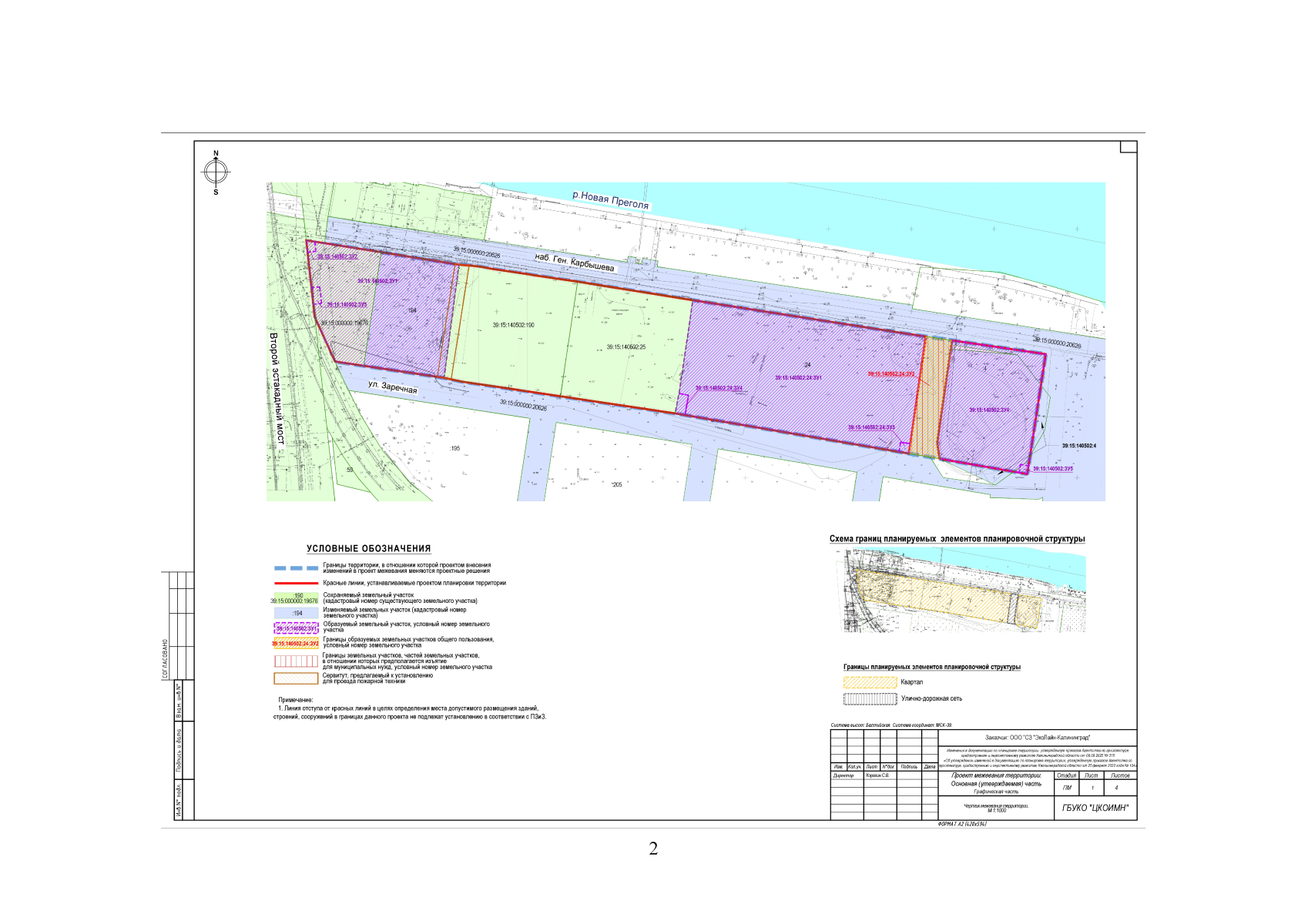
Приказ Министерства градостроительной политики Калининградской области от 30.10.2025 № 413
"Об утверждении изменений в проект межевания территории в составе проекта планировки территории, утвержденного приказом Агентства по архитектуре, градостроению и перспективному развитию Калининградской области от 25 февраля 2022 года № 104"
(Зарегистрирован 01.11.2025 № ГР/770/2025)
Номер опубликования: 3901202511100003
Дата опубликования: 10.11.2025
Страница №4 из 10: