Приказ Управления по охране объектов культурного наследия Калужской области от 30.08.2018 № 243
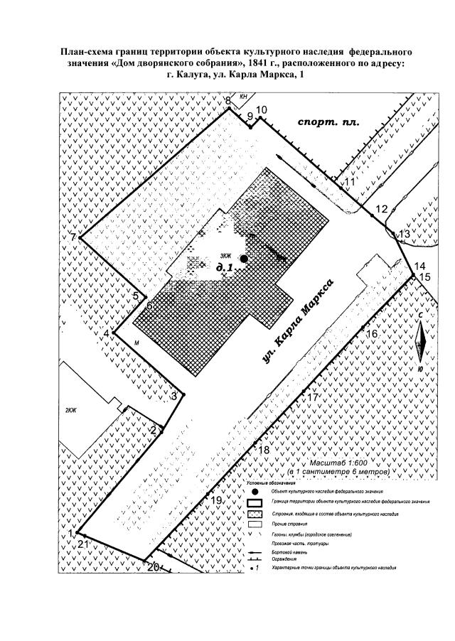
"Об утверждении границ и режима использования территории объекта культурного наследия федерального значения "Дом дворянского собрания", 1841 г., расположенного по адресу: г. Калуга, ул. Карла Маркса, 1"
(Зарегистрирован 24.09.2018 № 7894)
"Об утверждении границ и режима использования территории объекта культурного наследия федерального значения "Дом дворянского собрания", 1841 г., расположенного по адресу: г. Калуга, ул. Карла Маркса, 1"
(Зарегистрирован 24.09.2018 № 7894)
Номер опубликования: 4001201810010001
Дата опубликования:
01.10.2018
