Официальное опубликование правовых актов
ОФИЦИАЛЬНОЕ ОПУБЛИКОВАНИЕ
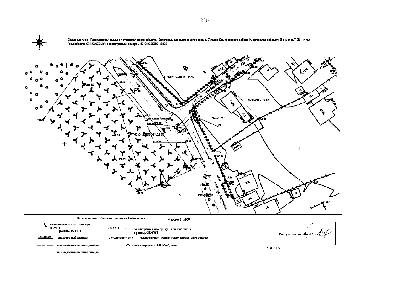
Приказ Министерства промышленности и торговли Кузбасса от 15.09.2025 № 01-05/193
"Об утверждении границ охранных зон существующих газораспределительных сетей и наложении ограничений (обременений) на входящие в них земельные участки"
(Зарегистрирован 29.09.2025 № 00152514214)
Номер опубликования: 4201202510080002
Дата опубликования: 08.10.2025
Страница №256 из 568:
Увеличить