Официальное опубликование правовых актов
ОФИЦИАЛЬНОЕ ОПУБЛИКОВАНИЕ
Решение управления государственной охраны объектов культурного наследия Кировской области от 29.01.2026 № 6
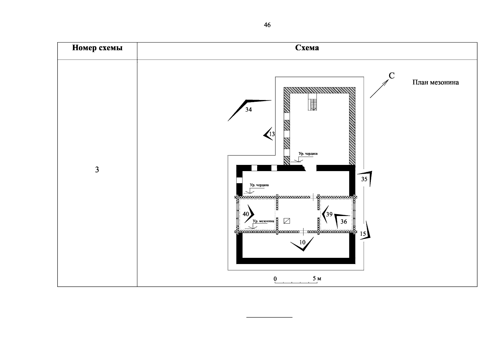
"Об установлении предмета охраны объекта культурного наследия (памятника истории и культуры) народов Российской Федерации регионального значения "Дом, где в 1899 г. жил революционер Бауман Н.Э.", расположенного по адресу: Кировская область, Орловский район, г. Орлов, ул. Орловская, д. 108"
(Зарегистрирован 03.02.2026 № 3219)
Номер опубликования: 4301202602040001
Дата опубликования: 04.02.2026
Страница №48 из 48:
Увеличить