Официальное опубликование правовых актов
ОФИЦИАЛЬНОЕ ОПУБЛИКОВАНИЕ
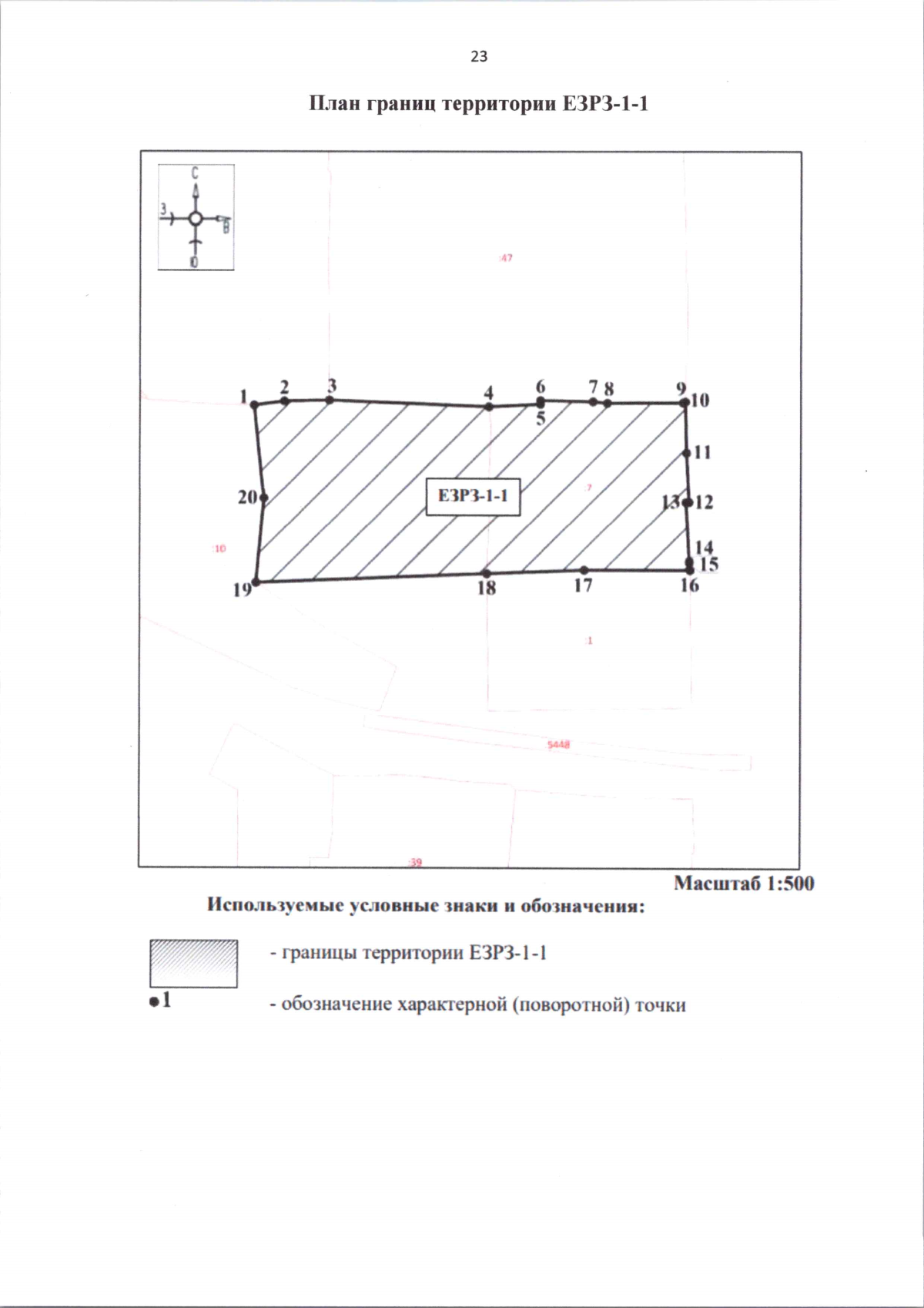
Постановление Правительства Курской области от 22.07.2024 № 575-пп
"Об установлении границ объединенной зоны охраны объектов культурного наследия, расположенных на территории города Курска, и утверждении требований к градостроительным регламентам в границах территорий данной зоны"
Номер опубликования: 4600202407260006
Дата опубликования: 26.07.2024
Страница №126 из 151:
Увеличить