Официальное опубликование правовых актов
ОФИЦИАЛЬНОЕ ОПУБЛИКОВАНИЕ
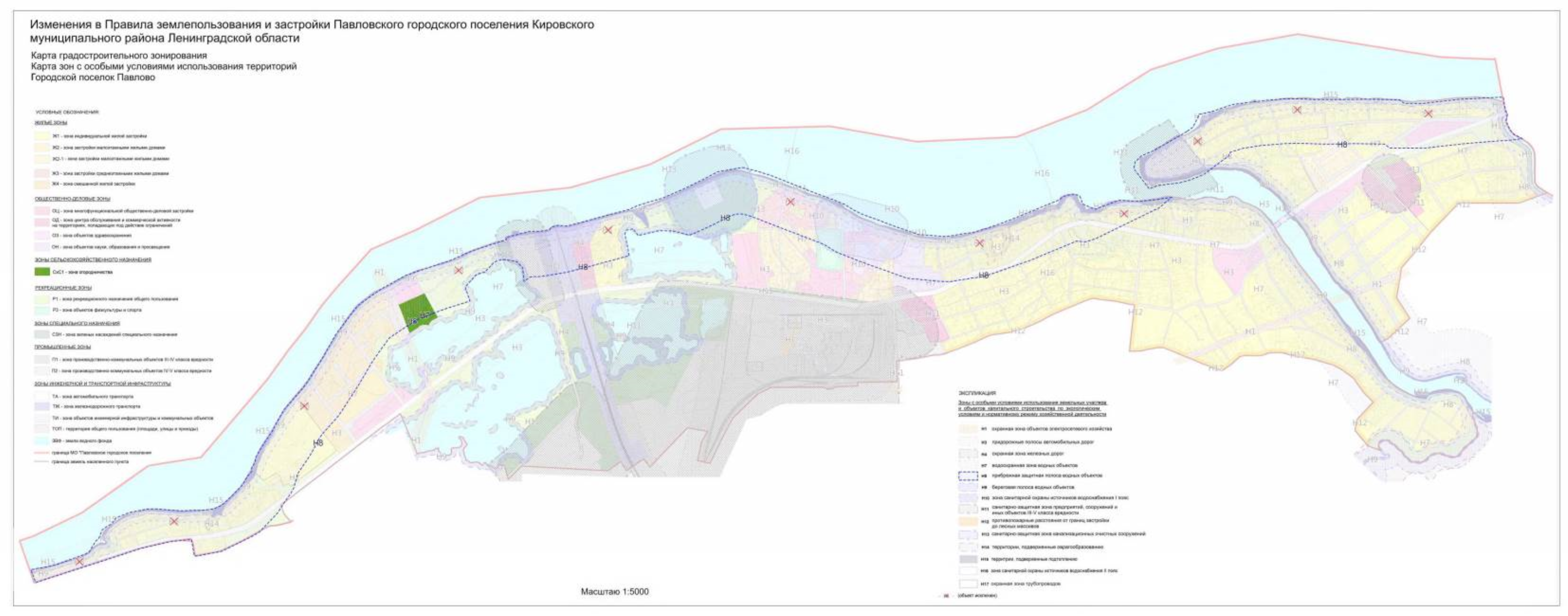
Приказ Комитета градостроительной политики Ленинградской области от 04.03.2026 № 23
"О внесении изменений в Правила землепользования и застройки Павловского городского поселения Кировского муниципального района Ленинградской области"
(Зарегистрирован 04.03.2026 № 01-06-23/2026)
Номер опубликования: 4701202603100007
Дата опубликования: 10.03.2026
Страница №7 из 12:
Увеличить