Официальное опубликование правовых актов
ОФИЦИАЛЬНОЕ ОПУБЛИКОВАНИЕ
Приказ министерства строительства и архитектуры Липецкой области от 06.05.2025 № 180
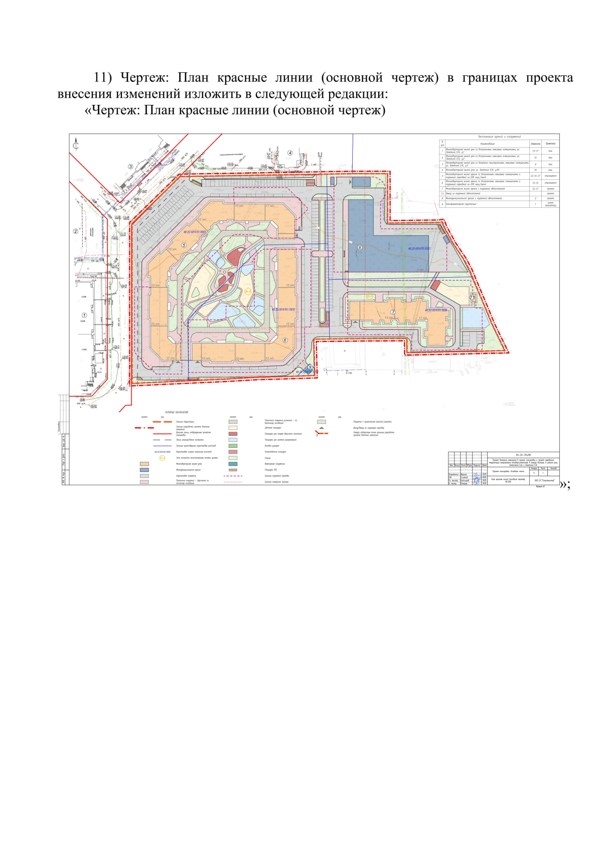
"О внесении изменений в приказ управления строительства и архитектуры Липецкой области от 26.12.2022 № 561 "Об утверждении проекта планировки и проекта межевания территории микрорайона "Университетский" в городе Липецке, в районе улиц Белянского А.Д. и Замятина Е.И."
Номер опубликования: 4801202505140006
Дата опубликования: 14.05.2025
Страница №16 из 24:
Увеличить