Официальное опубликование правовых актов
ОФИЦИАЛЬНОЕ ОПУБЛИКОВАНИЕ
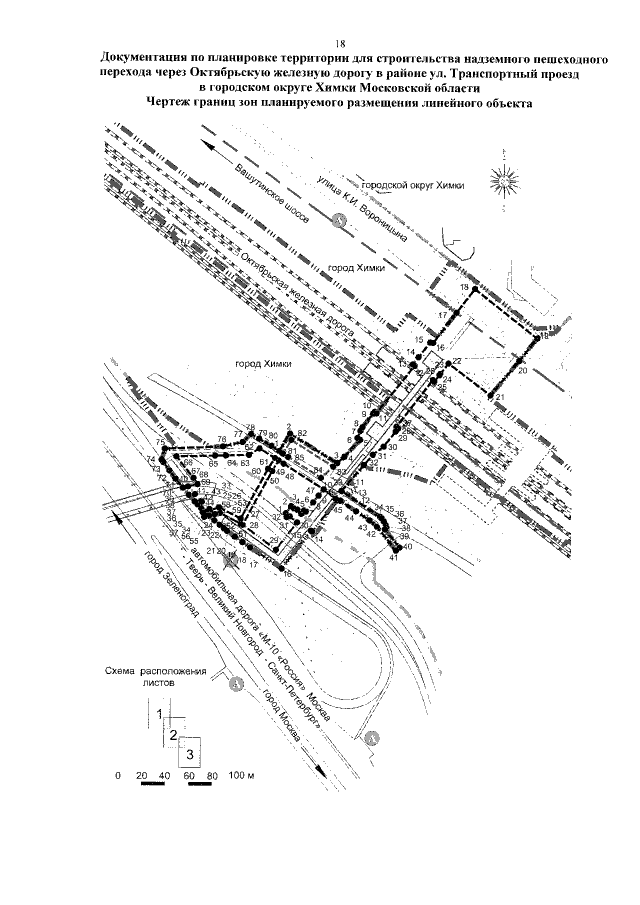
Постановление Правительства Московской области от 01.02.2021 № 51/2
"Об утверждении документации по планировке территории для строительства надземного пешеходного перехода через Октябрьскую железную дорогу в районе ул. Транспортный проезд в городском округе Химки Московской области"
Номер опубликования: 5000202102020001
Дата опубликования: 02.02.2021
Страница №20 из 45:
Увеличить