Официальное опубликование правовых актов
ОФИЦИАЛЬНОЕ ОПУБЛИКОВАНИЕ
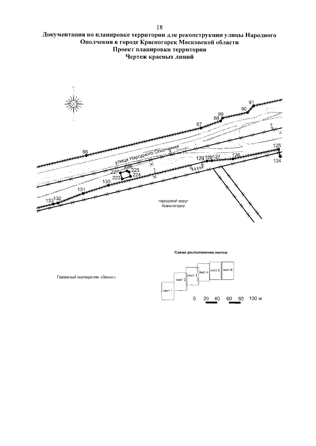
Постановление Правительства Московской области от 29.08.2022 № 885/29
"Об утверждении изменений в документацию по планировке территории для реконструкции улицы Народного Ополчения в городе Красногорск Московской области"
Номер опубликования: 5000202209010003
Дата опубликования: 01.09.2022
Страница №20 из 135:
Увеличить