Официальное опубликование правовых актов
ОФИЦИАЛЬНОЕ ОПУБЛИКОВАНИЕ
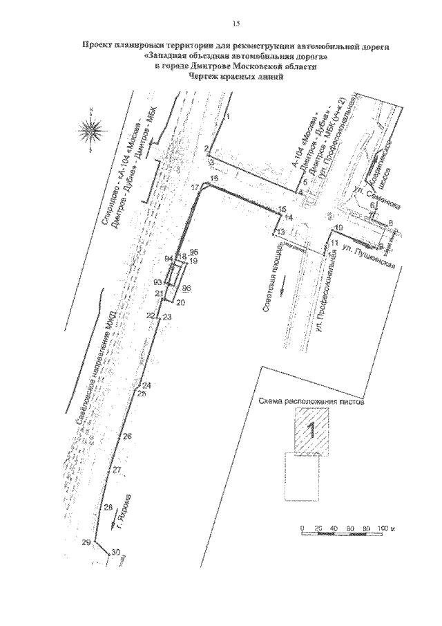
Постановление Правительства Московской области от 19.09.2022 № 982/31
"Об утверждении проекта планировки территории для реконструкции автомобильной дороги "Западная объездная автомобильная дорога" в городе Дмитрове Московской области"
Номер опубликования: 5000202209210002
Дата опубликования: 21.09.2022
Страница №17 из 22:
Увеличить