Официальное опубликование правовых актов
ОФИЦИАЛЬНОЕ ОПУБЛИКОВАНИЕ
Постановление Правительства Московской области от 16.11.2022 № 1260/39
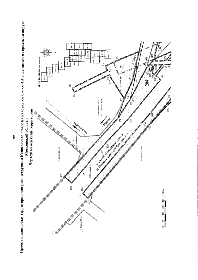
"О внесении изменений в проект планировки территории для реконструкции Каширского шоссе на участке км 0 – км 4,4 в Ленинском городском округе Московской области"
Номер опубликования: 5000202211170006
Дата опубликования: 17.11.2022
Страница №307 из 340:
Увеличить