Официальное опубликование правовых актов
ОФИЦИАЛЬНОЕ ОПУБЛИКОВАНИЕ
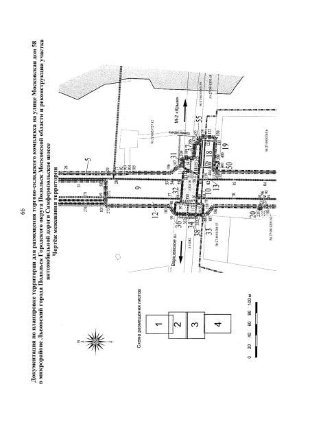
Постановление Правительства Московской области от 20.02.2023 № 64/4
"Об утверждении документации по планировке территории для размещения торгово-складского комплекса на улице Московская дом 58 в микрорайоне Львовский города Подольск Городского округа Подольск Московской области и реконструкции участка автомобильной дороги Симферопольское шоссе"
Номер опубликования: 5000202302210001
Дата опубликования: 21.02.2023
Страница №68 из 72:
Увеличить