Официальное опубликование правовых актов
ОФИЦИАЛЬНОЕ ОПУБЛИКОВАНИЕ
Постановление Правительства Московской области от 20.04.2023 № 224-ПП
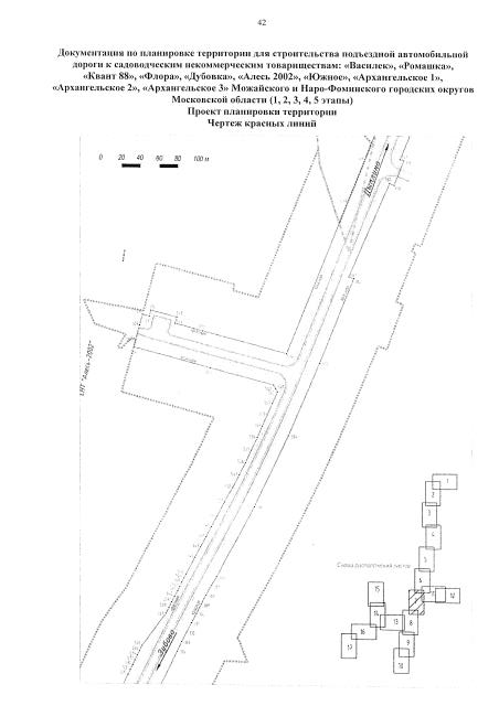
"Об утверждении документации по планировке территории для строительства подъездной автомобильной дороги к садоводческим некоммерческим товариществам: "Василек", "Ромашка", "Квант 88", "Флора", "Дубовка", "Алесь 2002", "Южное", "Архангельское 1", "Архангельское 2", "Архангельское 3" Можайского и Наро-Фоминского городских округов Московской области (1, 2, 3, 4, 5 этапы)"
Номер опубликования: 5000202304240004
Дата опубликования: 24.04.2023
Страница №44 из 162:
Увеличить