Официальное опубликование правовых актов
ОФИЦИАЛЬНОЕ ОПУБЛИКОВАНИЕ
Постановление Правительства Московской области от 06.07.2023 № 482-ПП
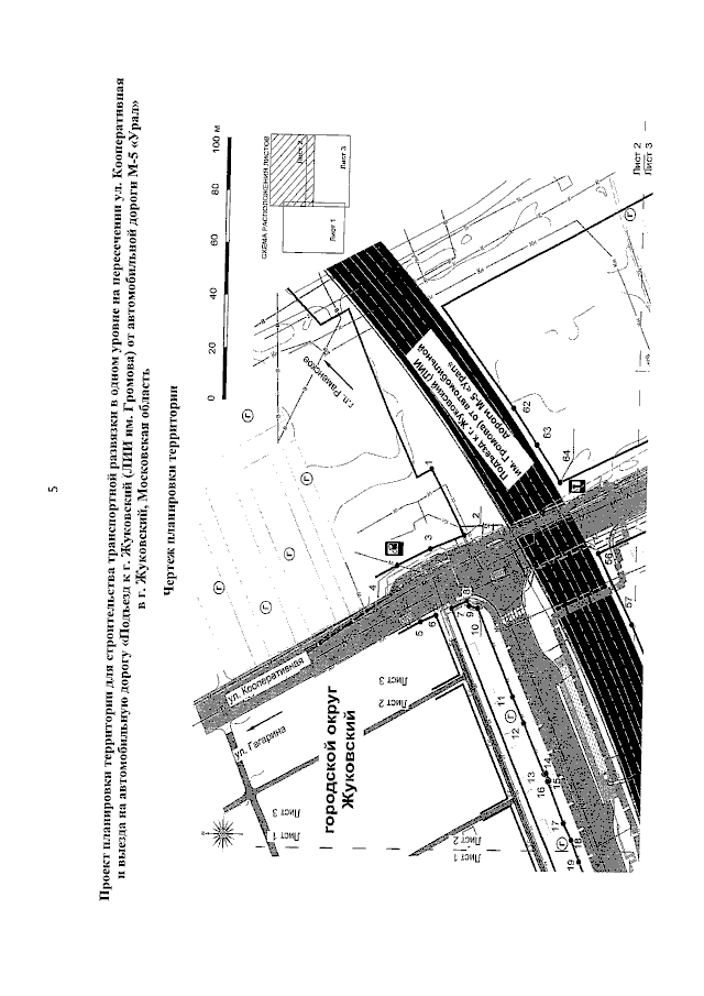
"О внесении изменений в проект планировки территории для строительства транспортной развязки в одном уровне на пересечении ул. Кооперативная и въезда на автомобильную дорогу "Подъезд к г. Жуковский (ЛИИ им. Громова) от автомобильной дороги М-5 "Урал" вг. Жуковский, Московская область"
Номер опубликования: 5000202307070023
Дата опубликования: 07.07.2023
Страница №7 из 8:
Увеличить