Официальное опубликование правовых актов
ОФИЦИАЛЬНОЕ ОПУБЛИКОВАНИЕ
Постановление Правительства Московской области от 19.07.2023 № 548-ПП
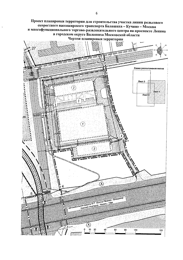
"О внесении изменений в проект планировки территории для строительства участка линии рельсового скоростного пассажирского транспорта Балашиха — Кучино — Москва и многофункционального торгово-развлекательного центра на проспекте Ленина в Городском округе Балашиха Московской области"
Номер опубликования: 5000202307200005
Дата опубликования: 20.07.2023
Страница №8 из 10:
Увеличить