Официальное опубликование правовых актов
ОФИЦИАЛЬНОЕ ОПУБЛИКОВАНИЕ
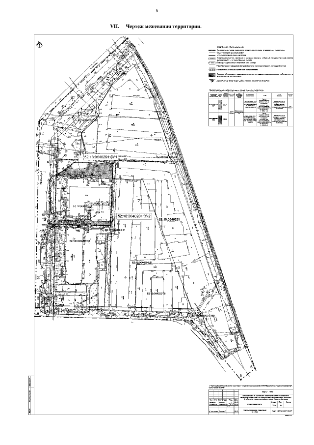
Приказ Министерства градостроительной деятельности и развития агломераций Нижегородской области от 25.12.2020 № 07-02-03/133 "Об утверждении документации по планировке территории (проект планировки и межевания территории) на пересечении улицы Дьяконова, проспекта Октября в Автозаводском районе города Нижнего Новгорода"
(Зарегистрирован 26.01.2021 № 16718-330-007-02-03/133)
Номер опубликования: 5201202101280011
Дата опубликования: 28.01.2021
Страница №7 из 7:
Увеличить