Приказ Министерства градостроительной деятельности и развития агломераций Нижегородской области от 28.12.2022 № 07-02-03/145
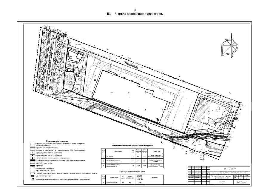
"Об утверждении документации по внесению изменений в проект планировки и межевания юго-западной части территории "Бурнаковская низина" в Московском районе города Нижнего Новгорода"
(Зарегистрирован 25.01.2023 № 22433-330-007-02-03/145)
"Об утверждении документации по внесению изменений в проект планировки и межевания юго-западной части территории "Бурнаковская низина" в Московском районе города Нижнего Новгорода"
(Зарегистрирован 25.01.2023 № 22433-330-007-02-03/145)
Номер опубликования: 5201202301270011
Дата опубликования:
27.01.2023
