Приказ Министерства градостроительной деятельности и развития агломераций Нижегородской области от 22.02.2023 № 07-02-03/14
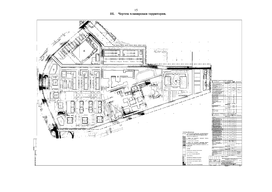
"Об утверждении документации по внесению изменений в проект планировки территории микрорайона "Комсомольский" в городском округе город Дзержинск Нижегородской области"
(Зарегистрирован 21.03.2023 № 22714-330-007-02-03/14)
"Об утверждении документации по внесению изменений в проект планировки территории микрорайона "Комсомольский" в городском округе город Дзержинск Нижегородской области"
(Зарегистрирован 21.03.2023 № 22714-330-007-02-03/14)
Номер опубликования: 5201202303220004
Дата опубликования:
22.03.2023
