Приказ Министерства градостроительной деятельности и развития агломераций Нижегородской области от 20.06.2023 № 07-02-03/66
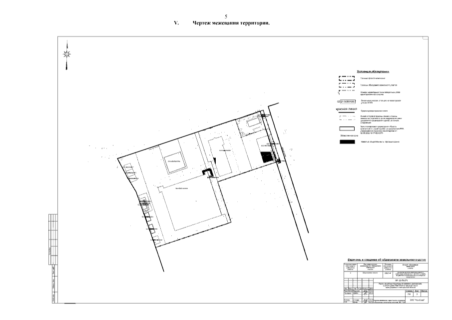
"Об утверждении проекта межевания территории по проспекту Циолковского, в районе домов №№ 57б-61 в городском округе город Дзержинск Нижегородской области"
(Зарегистрирован 17.07.2023 № 23363-330-007-02-03/66)
"Об утверждении проекта межевания территории по проспекту Циолковского, в районе домов №№ 57б-61 в городском округе город Дзержинск Нижегородской области"
(Зарегистрирован 17.07.2023 № 23363-330-007-02-03/66)
Номер опубликования: 5201202307200010
Дата опубликования:
20.07.2023
