Официальное опубликование правовых актов
ОФИЦИАЛЬНОЕ ОПУБЛИКОВАНИЕ
Приказ Министерства градостроительной деятельности и развития агломераций Нижегородской области от 12.03.2024 № 07-02-03/17
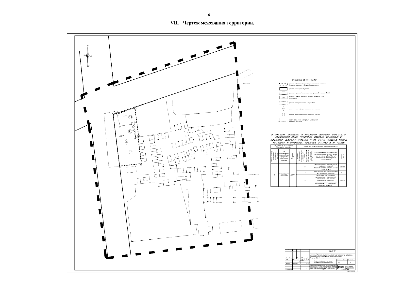
"Об утверждении документации по планировке территории (проекта планировки территории, включая проект межевания территории) в границах улиц Тимирязева, 1-ая Оранжерейная, Оранжерейный тупик в Советском районе города Нижнего Новгорода"
(Зарегистрирован 27.03.2024 № 25308-330-007-02-03/17)
Номер опубликования: 5201202403290014
Дата опубликования: 29.03.2024
Страница №8 из 9:
Увеличить