Приказ Министерства градостроительной деятельности и развития агломераций Нижегородской области от 30.10.2024 № 07-02-03/96
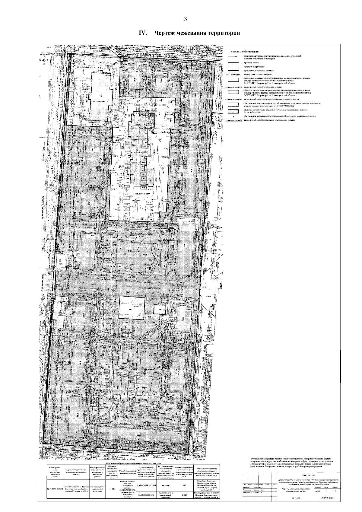
"Об утверждении документации по внесению изменений в проект межевания территории в границах проспекта Гагарина, улиц Бекетова, Нартова, Медицинская в Советском районе города Нижнего Новгорода"
(Зарегистрирован 11.11.2024 № 26617-330-007-02-03/96)
"Об утверждении документации по внесению изменений в проект межевания территории в границах проспекта Гагарина, улиц Бекетова, Нартова, Медицинская в Советском районе города Нижнего Новгорода"
(Зарегистрирован 11.11.2024 № 26617-330-007-02-03/96)
Номер опубликования: 5201202411130007
Дата опубликования:
13.11.2024
