Официальное опубликование правовых актов
ОФИЦИАЛЬНОЕ ОПУБЛИКОВАНИЕ
Приказ Министерства градостроительной деятельности и развития агломераций Нижегородской области от 08.11.2024 № 07-02-03/100
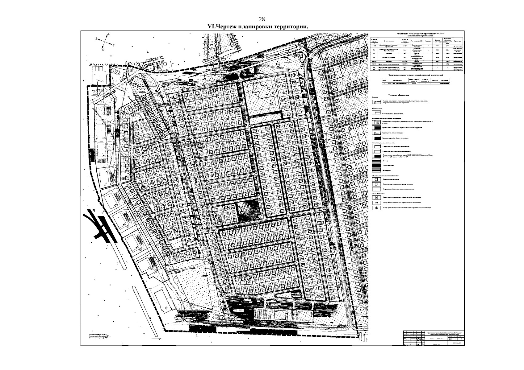
"Об утверждении документации по планировке территории (проекта планировки территории, включая проект межевания территории), расположенной в юго-восточной части деревни Опалиха Кстовского муниципального округа Нижегородской области"
(Зарегистрирован 29.11.2024 № 26763-330-007-02-03/100)
Номер опубликования: 5201202411290003
Дата опубликования: 29.11.2024
Страница №30 из 32:
Увеличить