Официальное опубликование правовых актов
ОФИЦИАЛЬНОЕ ОПУБЛИКОВАНИЕ
Приказ Министерства градостроительной деятельности и развития агломераций Нижегородской области от 01.04.2025 № 07-02-03/37
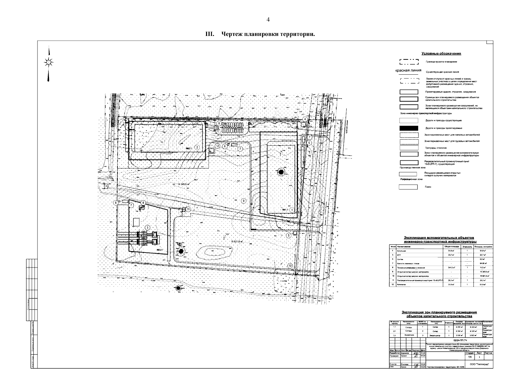
"Об утверждении изменений в проект планировки территории, расположенной южнее земельного участка с кадастровым номером 52:21:0000002:347 по адресу шоссе Нижегородское, 82 в городском округ город Дзержинск Нижегородской области"
(Зарегистрирован 14.04.2025 № 27984-330-007-02-03/37)
Номер опубликования: 5201202504170003
Дата опубликования: 17.04.2025
Страница №6 из 6:
Увеличить