Приказ Министерства градостроительной деятельности и развития агломераций Нижегородской области от 08.08.2025 № 07-02-03/68
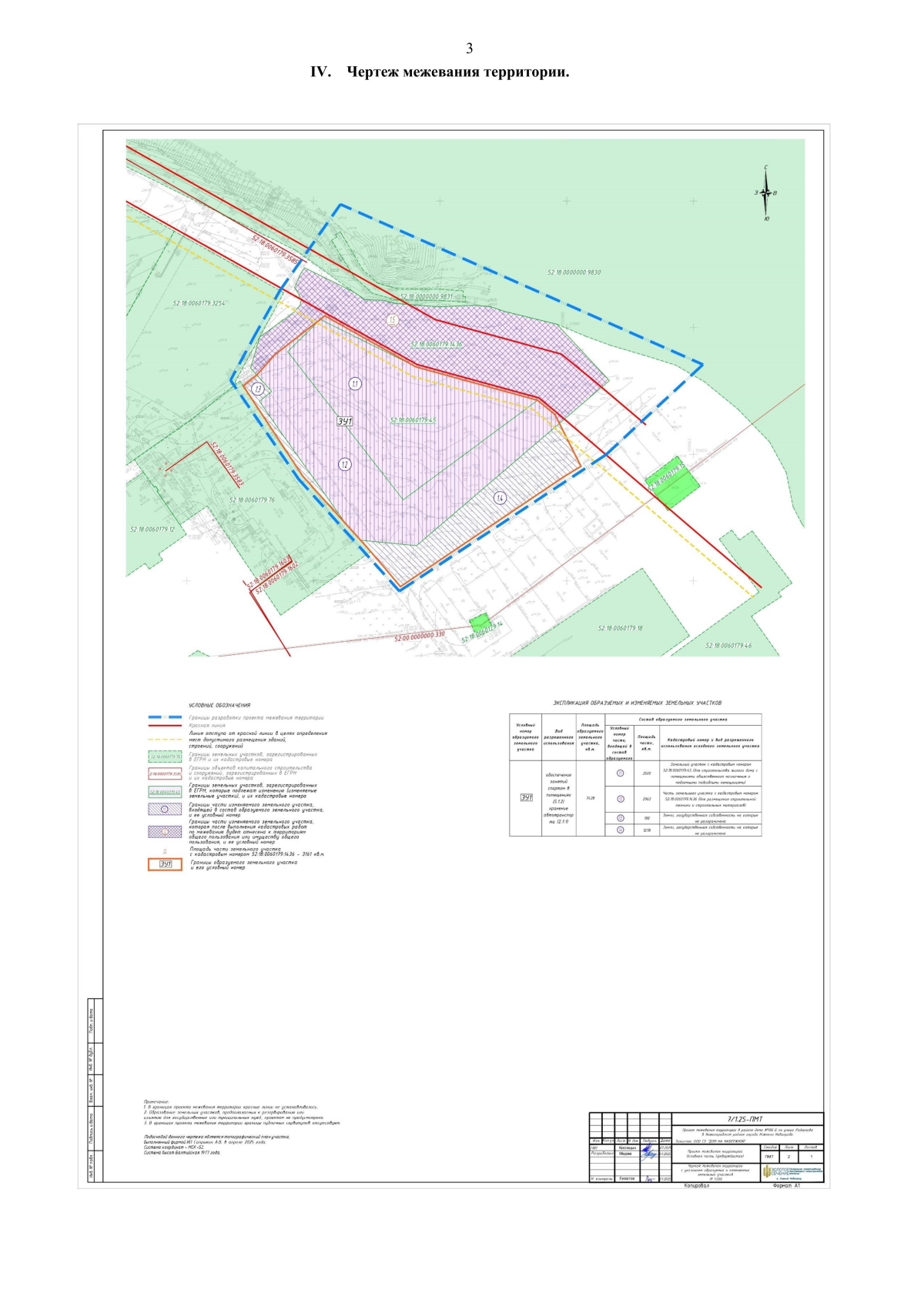
"Об утверждении проекта межевания территории в районе дома № 186Б по улице Родионова в Нижегородском районе города Нижнего Новгорода"
(Зарегистрирован 08.09.2025 № 28627-330-007-02-03/68)
"Об утверждении проекта межевания территории в районе дома № 186Б по улице Родионова в Нижегородском районе города Нижнего Новгорода"
(Зарегистрирован 08.09.2025 № 28627-330-007-02-03/68)
Номер опубликования: 5201202509100001
Дата опубликования:
10.09.2025
