Официальное опубликование правовых актов
ОФИЦИАЛЬНОЕ ОПУБЛИКОВАНИЕ
Приказ Министерства градостроительной деятельности и развития агломераций Нижегородской области от 17.09.2025 № 07-02-03/85
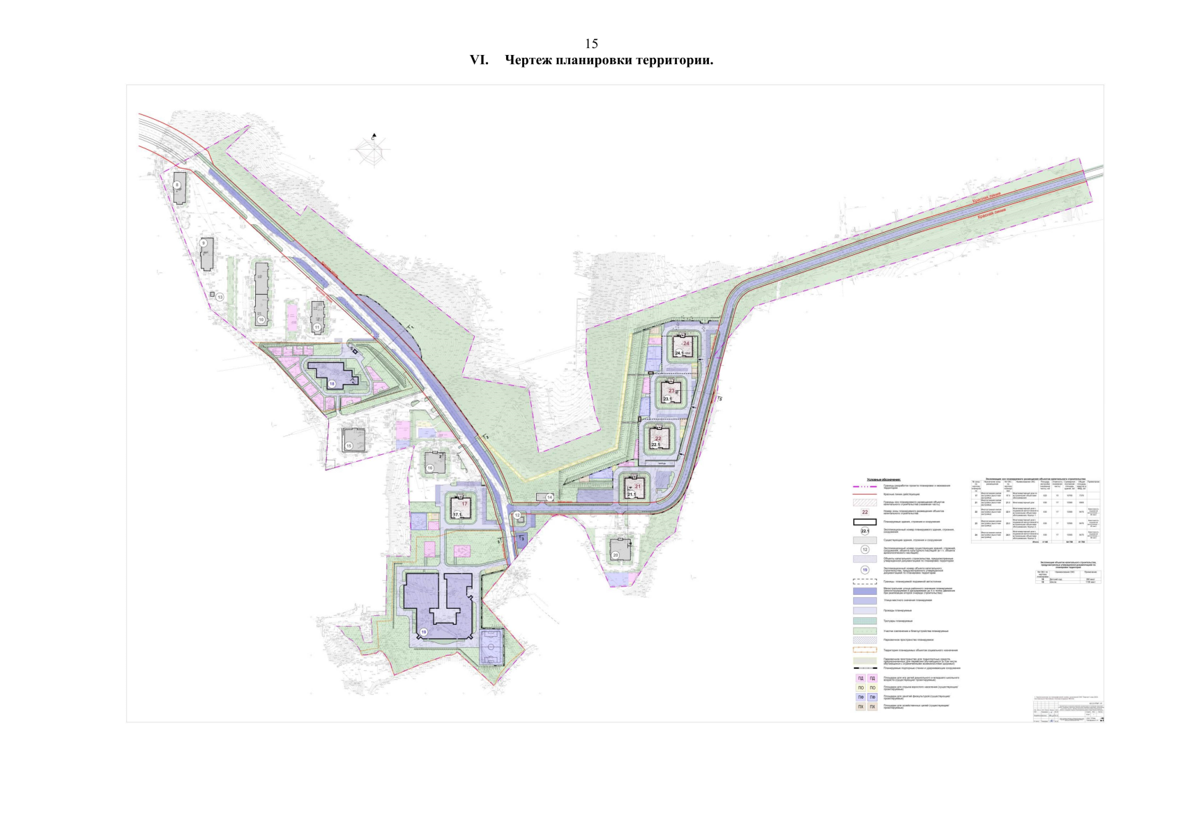
"Об утверждении документации по внесению изменений в документацию по планировке территории (проект планировки территории, включая проект межевания территории), прилегающей с восточной стороны к деревне Никульское в Кстовском районе городского округа город Нижний Новгород Нижегородской области, с западной стороны к Нижегородскому району города Нижнего Новгорода"
(Зарегистрирован 14.10.2025 № 28814-330-007-02-03/85)
Номер опубликования: 5201202510160001
Дата опубликования: 16.10.2025
Страница №17 из 21:
Увеличить