Официальное опубликование правовых актов
ОФИЦИАЛЬНОЕ ОПУБЛИКОВАНИЕ
Приказ Министерства градостроительной деятельности и развития агломераций Нижегородской области от 22.09.2025 № 07-02-03/88
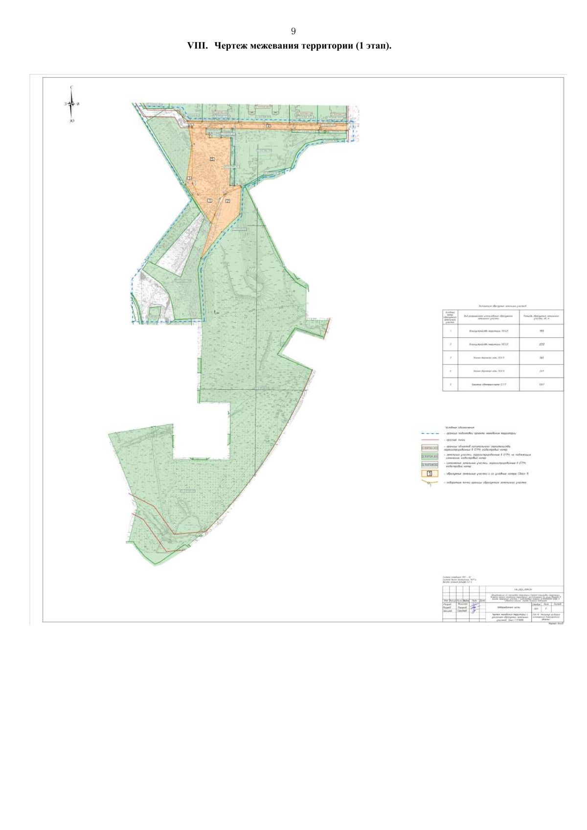
"Об утверждении документации по планировке территории (проекта планировки территории, включая проект межевания территории), расположенной по улице Ванеева в районе земельного участка с кадастровым номером 52:18:0000000:13568, в Советском районе города Нижнего Новгорода"
(Зарегистрирован 16.10.2025 № 28820-330-007-02-03/88)
Номер опубликования: 5201202510170003
Дата опубликования: 17.10.2025
Страница №11 из 15:
Увеличить