Официальное опубликование правовых актов
ОФИЦИАЛЬНОЕ ОПУБЛИКОВАНИЕ
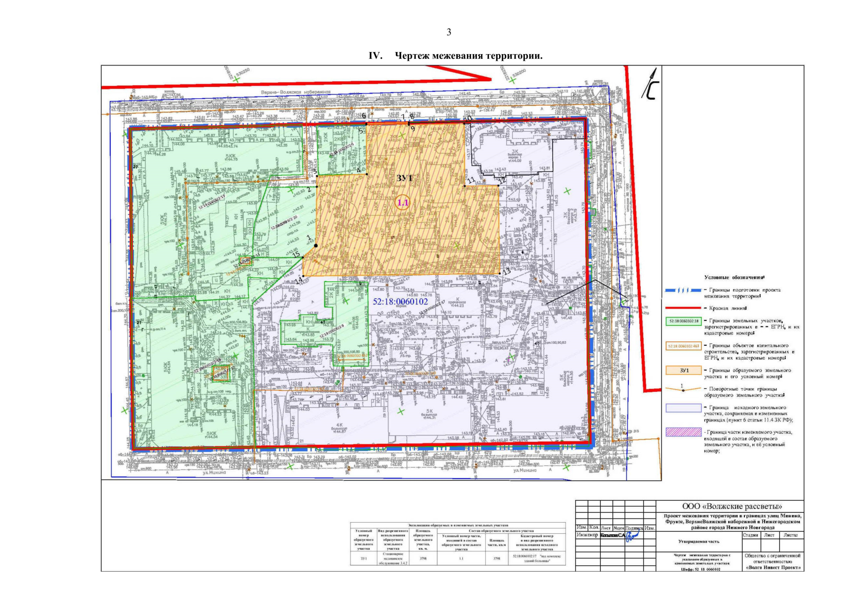
Приказ Министерства градостроительной деятельности и развития агломераций Нижегородской области от 01.11.2025 № 07-02-03/101
"Об утверждении проекта межевания территории в границах улиц Минина, Фрунзе, Верхне-Волжской набережной в Нижегородском районе города Нижнего Новгорода"
(Зарегистрирован 25.11.2025 № 28983-330-007-02-03/101)
Номер опубликования: 5201202511270005
Дата опубликования: 27.11.2025
Страница №5 из 6:
Увеличить