Официальное опубликование правовых актов
ОФИЦИАЛЬНОЕ ОПУБЛИКОВАНИЕ
Приказ Министерства градостроительной деятельности и развития агломераций Нижегородской области от 16.02.2026 № 05-01-03/7
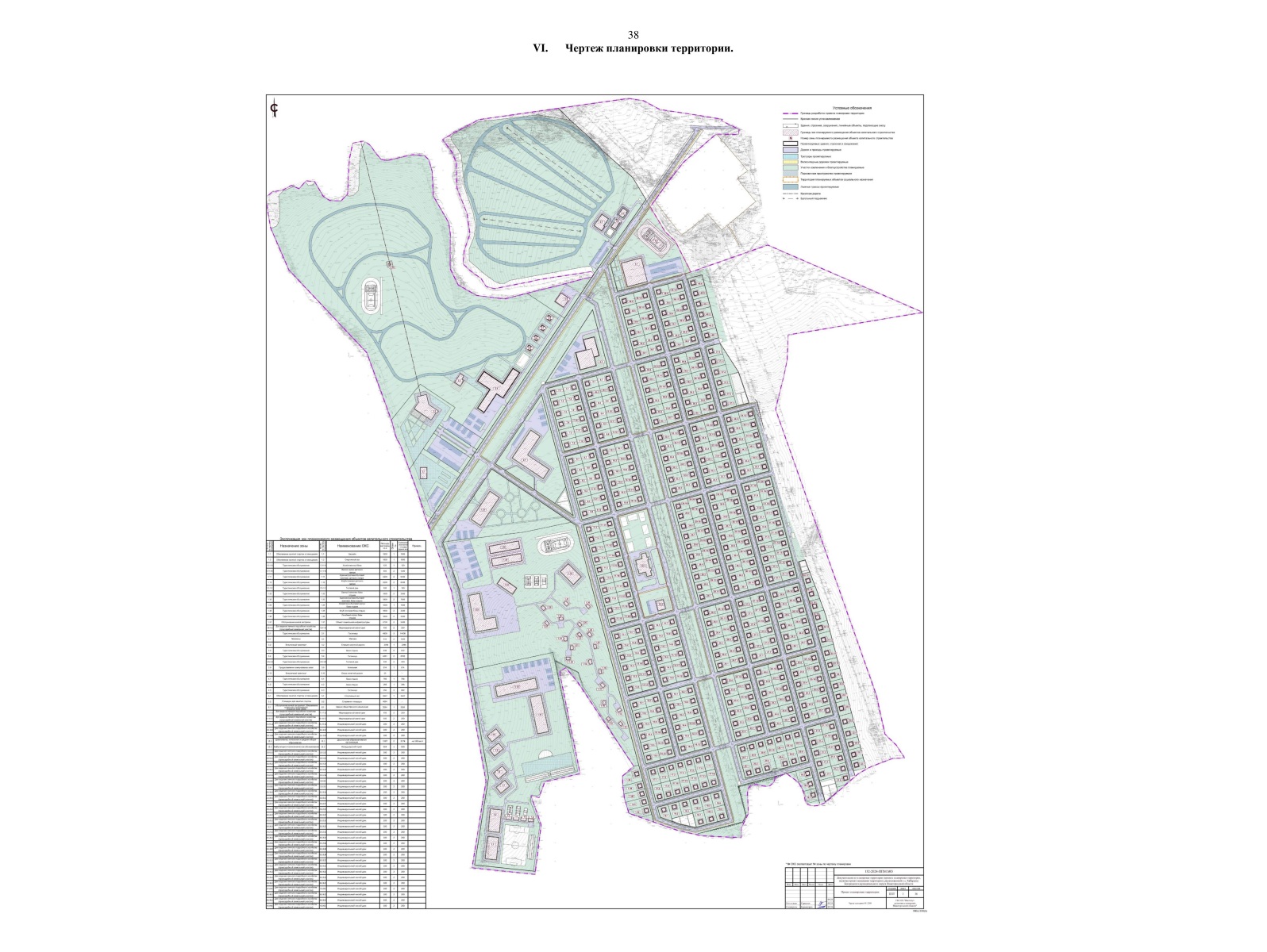
"Об утверждении документации по планировке территории (проекта планировки территории, включая проект межевания территории), расположенной в д. Хабарское Богородского муниципального округа Нижегородской области"
(Зарегистрирован 17.03.2026 № 29994-330-005-01-03/7)
Номер опубликования: 5201202603190016
Дата опубликования: 19.03.2026
Страница №40 из 42: