Приказ Министерства градостроительной деятельности и развития агломераций Нижегородской области от 12.03.2026 № 05-01-03/14
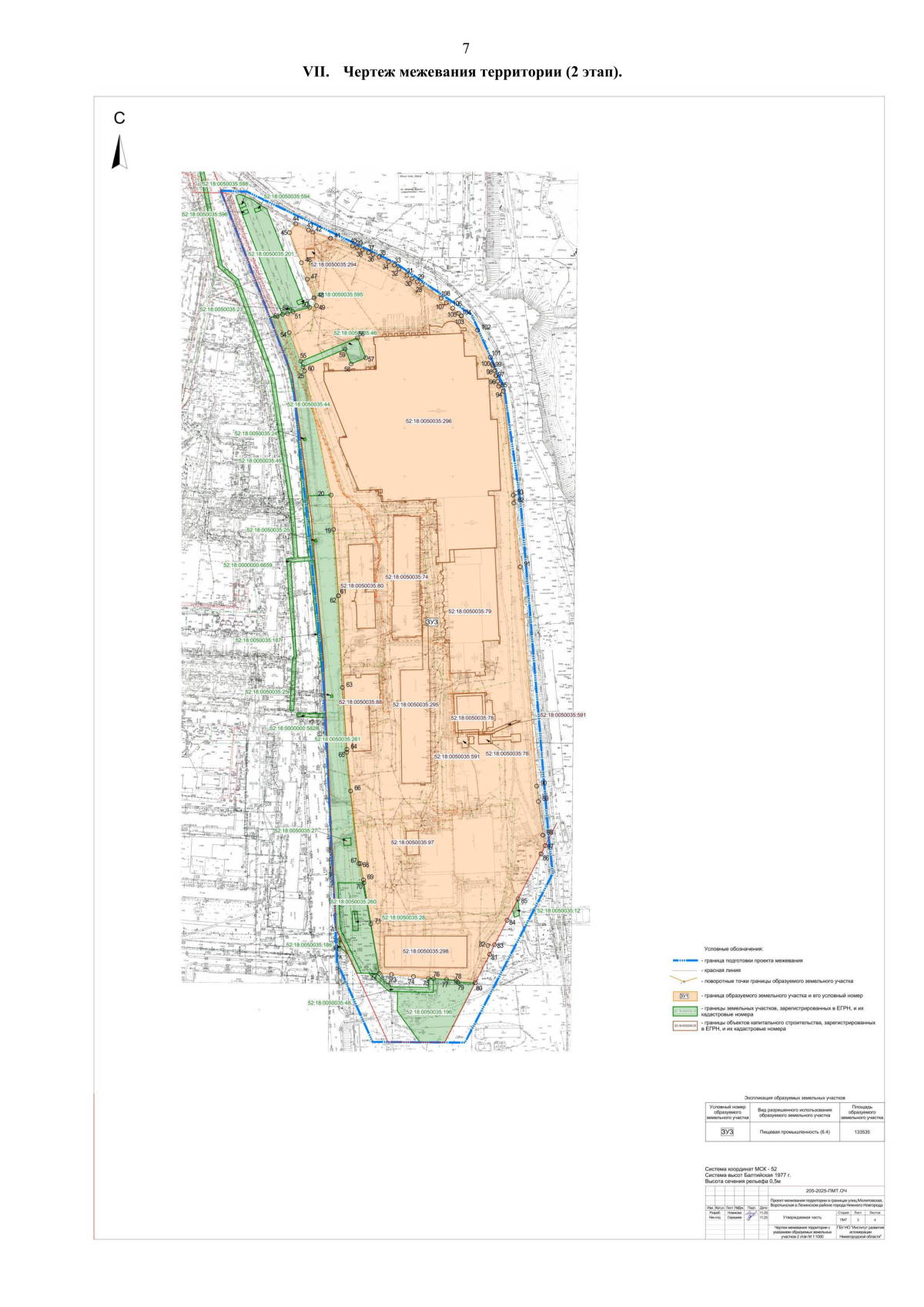
"Об утверждении проекта межевания территории в границах улиц Молитовская, Воротынская в Ленинском районе города Нижнего Новгорода"
(Зарегистрирован 06.04.2026 № 30127-330-005-01-03/14)
"Об утверждении проекта межевания территории в границах улиц Молитовская, Воротынская в Ленинском районе города Нижнего Новгорода"
(Зарегистрирован 06.04.2026 № 30127-330-005-01-03/14)
Номер опубликования: 5201202604080002
Дата опубликования:
08.04.2026
