Официальное опубликование правовых актов
ОФИЦИАЛЬНОЕ ОПУБЛИКОВАНИЕ
Приказ Инспекции государственной охраны объектов культурного наследия Оренбургской области от 26.07.2023 № 01-08-306
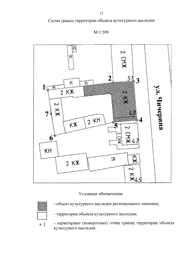
"О включении выявленного объекта культурного наследия в единый государственный реестр объектов культурного наследия (памятников истории и культуры) народов Российской Федерации в качестве объекта культурного наследия регионального значения (вид – памятник) "Дом Е.И. Коробковой", 1876 г.; 1906-1907 гг., (Оренбургская область, г. Оренбург, ул. Чичерина, 49, Литера А), об утверждении предметов охраны, границ и режима использования территории объекта культурного наследия"
(Зарегистрирован 26.07.2023 № 0180/2023/22)
Номер опубликования: 5601202307270026
Дата опубликования: 27.07.2023
Страница №17 из 19:
Увеличить