Официальное опубликование правовых актов
ОФИЦИАЛЬНОЕ ОПУБЛИКОВАНИЕ
Приказ Инспекции государственной охраны объектов культурного наследия Оренбургской области от 21.12.2023 № 01-08-816
"О внесении изменений в приказ инспекции государственной охраны объектов культурного наследия Оренбургской области от 08.04.2021 № 01-08-80"
(Зарегистрирован 21.12.2023 № 0533/2023/22)
Номер опубликования: 5601202312250026
Дата опубликования: 25.12.2023
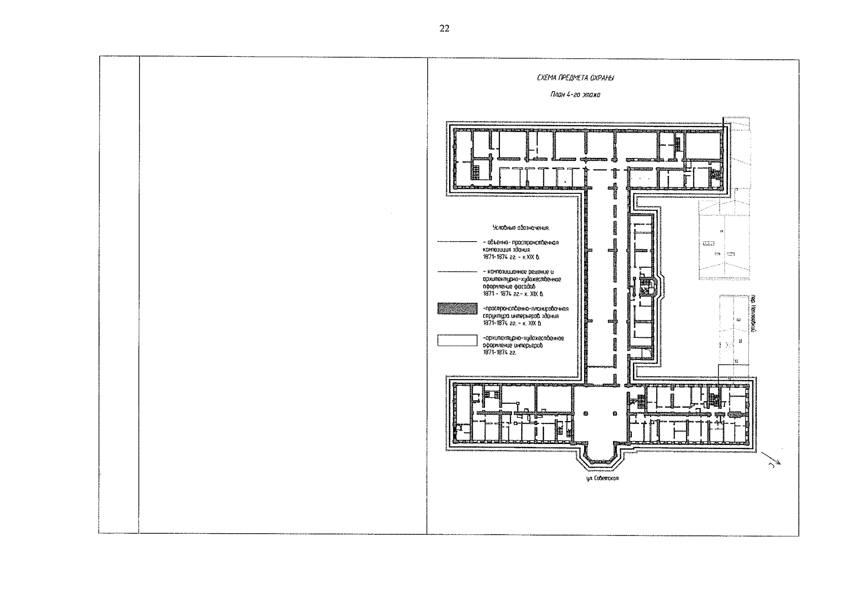
Страница №22 из 23:
Увеличить