Официальное опубликование правовых актов
ОФИЦИАЛЬНОЕ ОПУБЛИКОВАНИЕ
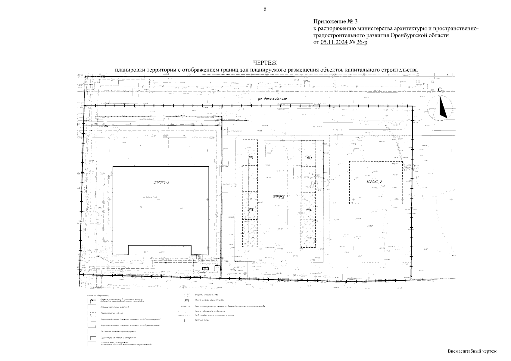
Распоряжение Министерства архитектуры и пространственно-градостроительного развития Оренбургской области от 05.11.2024 № 26-р
"Об утверждении проекта планировки территории, ограниченной ул. Рокоссовского, ул. Терешковой и земельными участками с кадастровыми номерами 56:44:0124001:135, 56:44:0124001:5988, 56:44:0124001:5991"
(Зарегистрирован 05.11.2024 № 0093/2024/02)
Номер опубликования: 5601202411080003
Дата опубликования: 08.11.2024
Страница №6 из 10:
Увеличить