Приказ Управления по государственной охране объектов культурного наследия Орловской области от 25.08.2025 № 132
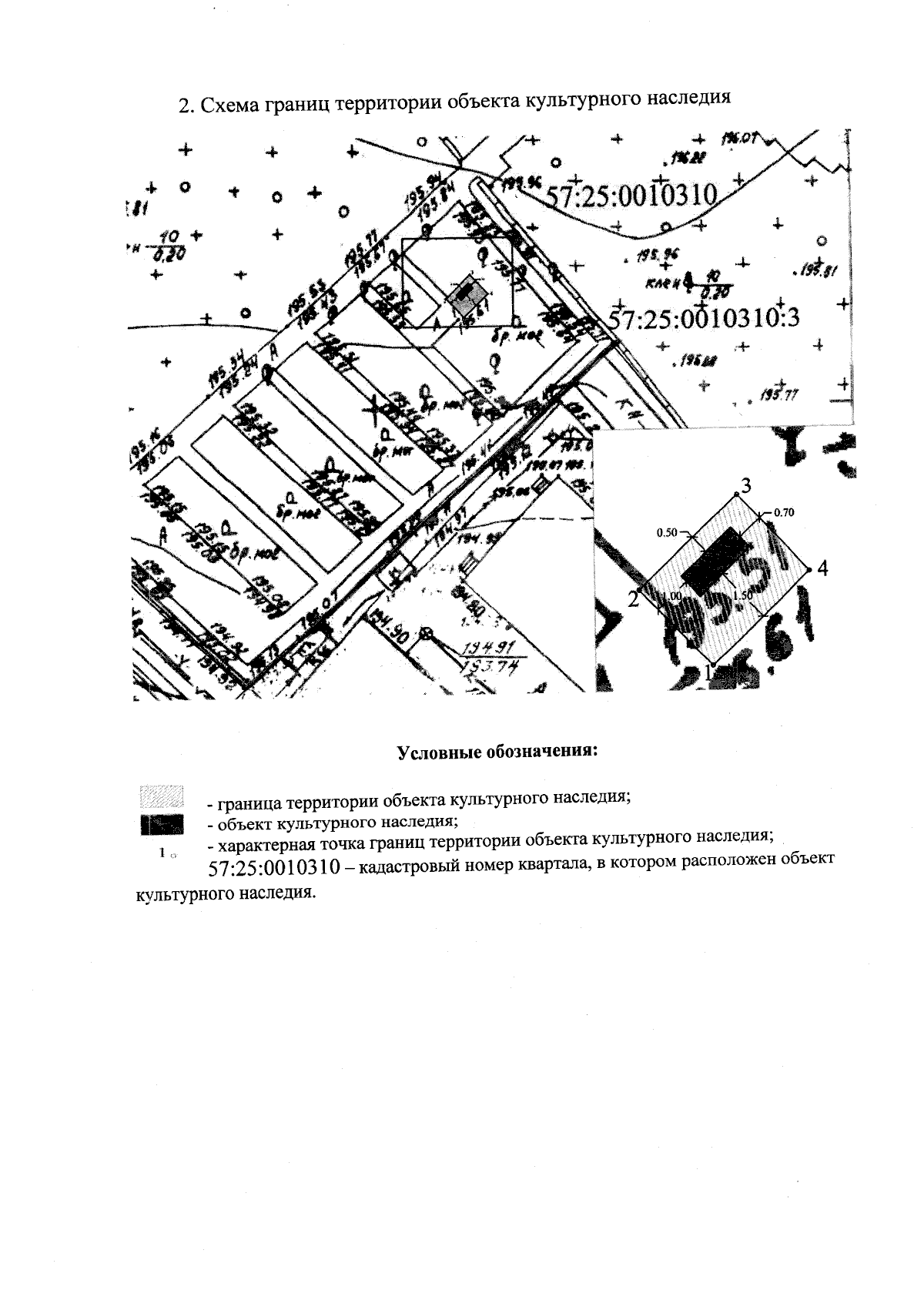
"Об утверждении границ территории и правового режима использования территории объекта культурного наследия регионального историко-культурного значения "Могила генерала Родина Георгия Семеновича, 1976 г.", 1976 г., расположенного по адресу: Орловская область, г. Орел, Троицкое кладбище"
(Зарегистрирован 26.08.2025 № 381/2025)
"Об утверждении границ территории и правового режима использования территории объекта культурного наследия регионального историко-культурного значения "Могила генерала Родина Георгия Семеновича, 1976 г.", 1976 г., расположенного по адресу: Орловская область, г. Орел, Троицкое кладбище"
(Зарегистрирован 26.08.2025 № 381/2025)
Номер опубликования: 5701202508280007
Дата опубликования:
28.08.2025
